おすすめ物件詳細
アルファレジデンシア南千住
- 上野
- 吉原
- ペット可
- 新築
- 初期費用分割可
- インターネット無料
写真をタップして拡大
- 賃料相場:234,000円~255,000円
- (管理・共益費:15,000円)
- 東京メトロ日比谷線「三ノ輪」駅 徒歩7分
JR常磐線「南千住」駅 徒歩8分
つくばエクスプレス「南千住」駅 徒歩8分 - 1ヶ月
- 1ヶ月
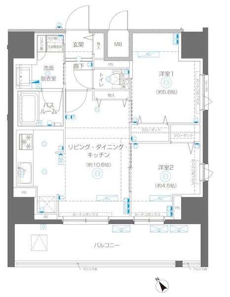
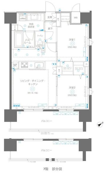
- 2LDK
- 52.28m²~62.72m²
- 2025年10月
- この物件の特徴
-
- この物件の設備
-
- この物件のおすすめポイント
-
保証人不要・ペット飼育相談可・多頭飼い可・インターネット無料
2025年10月築の分譲賃貸マンション「アルファレジデンシア南千住」のご紹介です。
希少な多頭飼い可能物件となっております。
犬または猫2匹まで相談できますのでご検討の方はお早めに。
南千住駅が徒歩8分で利用可能。
駅前に大型複合商業施設(LaLaテラス南千住、BiVi南千住)やロイヤルホームセンター南千住といった施設が集積しておりスーパー・ドラッグストア・飲食店・病院などが揃い日用品の買い物は駅前で完結します。
水商売のお部屋探しは『お水の賃貸』にお任せ下さい。
※このサイトは物件カタログになっておりますので、最新の空室確認お待ちしております。
≪周辺環境≫
・まいばすけっと南千住5丁目店…70m
・ファミリーマート南千住一丁目店…219m
・木曽路南千住店…189m
・ケンタッキーフライドチキン三ノ輪店…247m
・業務スーパー三ノ輪店…377m
・珈琲館三ノ輪店…391m
・ライフ南千住店…410m
・ウエルシア三ノ輪橋駅前店…418m
◇◆水商売・ナイトワークのお部屋探し◇◆
●お水の賃貸ではホームページに掲載されていない物件でも空室であればご紹介可能です。
1都3県どこの場所でも条件を頂ければ物件をご紹介させて頂きます。
お気軽にお問い合わせ下さい。
●『お水の賃貸』公式Instagramでは、イチオシキャバ嬢グラビア公開中
@omizunochintai
良かったらフォローしてください。
| 物件種別 | 賃貸マンション |
|---|---|
| 所在地 | 東京都荒川区南千住1丁目59-7 |
| その他沿線 | |
| 規模・構造 | 鉄筋コンクリート造 15階建て |
| 所在階 | |
| 償却 | |
| 駐車場 | あり(要確認) |
| バイク置場 | あり(要確認) |
| 駐輪場 | あり(要確認) |
| 主要採光 | |
| 保証金 | |
| 保険 | 月々1,835円 |
| 契約期間 | 2年 |
| 更新料 | 新賃料の1ヶ月分 |
| 入居日 | |
| 取引態様 | 媒介 |
| 自社物件番号 | 7321 |
| 備考 | |
| 最終更新日 | 26年03月27日 |
『このWebサイトから自動的に電話をかけることは禁止されています。』と表示されることがございますが、ブラウザの仕様ですので問題ございません。『通話を許可』でおかけください。
- ※現在の空室と異なる場合がございます。最新の空室情報はお問い合わせください。
- ※ネットに掲載されている情報と現状が異なる場合は現状を優先とします。
- ※こちらのサイトは物件紹介サイトとなっております。ご成約済みの場合は別部屋・類似物件のご紹介を致します。




























