おすすめ物件詳細
ZOOM信濃町(ズーム信濃町)
- 歌舞伎町
- ペット可
- 新築
- 初期費用分割可
- インターネット無料
写真をタップして拡大
- 賃料相場:163,000円~192,000円
- (管理・共益費:15,000円)
- 東京メトロ丸の内線「四谷三丁目」駅 徒歩4分
JR中央・総武線「信濃町」駅 徒歩7分
都営新宿線「曙橋」駅 徒歩11分 - 1ヶ月
- 1ヶ月
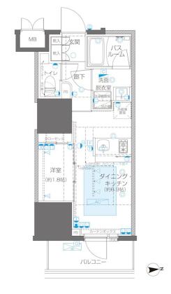
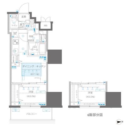
- 1DK
- 27.9m²~31.1m²
- 2025年07月
- この物件の特徴
-
- この物件の設備
-
- この物件のおすすめポイント
-
丸ノ内線「四ツ谷三丁目駅」徒歩4分、ペット飼育可・Wi-Fi完備の分譲賃貸マンション
最先端のスマートロック、Flassa1j導入済み。
『ZOOM信濃町(ズーム信濃町)』
スマートフォンや交通系ICカード、指紋認証でお部屋を施錠可能。
自動ロックで鍵の閉め忘れも防止できるのでセキリュティ-も万全です。
室内設備が充実している分譲賃貸マンションで、インターネット無料、ペット飼育もご相談可能です。
交通面でも東京メトロ丸ノ内線「四谷三丁目駅」徒歩4分、新宿駅まで3駅約4分でアクセスが可能です。
歌舞伎町・赤坂方面で働く水商売の方にオススメの物件情報です。
※このサイトは物件カタログになっておりますので、最新の空室確認お待ちしております。
《周辺施設》
・MARUSHO総本店…359m
・まいばすけっと新宿大京町店…445m
・セブンイレブン新宿信濃町店…22m
・ミニストップ新宿左門町店…113m
・コンビニ ローソン四谷左門町店…227m
・松屋四谷三丁目店…320m
・スターバックスコーヒー慶應義塾大学病院店…384m
・サイゼリヤ四谷三丁目店…361m
・サンドラッグCVS四谷三丁目店…362m
周辺環境も充実していますので快適に生活する事が出来ます。
◇◆水商売・ナイトワークのお部屋探し◇◆
●お水の賃貸ではホームページに掲載されていない物件でも空室であればご紹介可能です。
1都3県どこの場所でも条件を頂ければ物件をご紹介させて頂きます。
お気軽にお問い合わせ下さい。
●『お水の賃貸』公式Instagramでは、イチオシキャバ嬢グラビア公開中
@omizunochintai
良かったらフォローしてください^^
| 物件種別 | 賃貸マンション |
|---|---|
| 所在地 | 東京都新宿区左門町21-2 |
| その他沿線 | |
| 規模・構造 | 鉄筋コンクリート造 13階建て |
| 所在階 | |
| 償却 | |
| 駐車場 | あり(要確認) |
| バイク置場 | あり(要確認) |
| 駐輪場 | あり(要確認) |
| 主要採光 | |
| 保証金 | |
| 保険 | 月々1,735円~1,835円 |
| 契約期間 | 2年 |
| 更新料 | 新賃料の1ヶ月分 |
| 入居日 | |
| 取引態様 | 媒介 |
| 自社物件番号 | 7236 |
| 備考 | |
| 最終更新日 | 26年03月27日 |
『このWebサイトから自動的に電話をかけることは禁止されています。』と表示されることがございますが、ブラウザの仕様ですので問題ございません。『通話を許可』でおかけください。
- ※現在の空室と異なる場合がございます。最新の空室情報はお問い合わせください。
- ※ネットに掲載されている情報と現状が異なる場合は現状を優先とします。
- ※こちらのサイトは物件紹介サイトとなっております。ご成約済みの場合は別部屋・類似物件のご紹介を致します。




























