おすすめ物件詳細
アイル川崎ステーションプラザ
- 横浜・川崎
- ペット可
- 初期費用分割可
写真をタップして拡大
- 賃料相場:78,000円~円
- (管理・共益費:10,000円)
- JR京浜東北線「川崎」駅 徒歩5分
京急本線「京急川崎」駅 徒歩7分
京急本線「八丁畷」駅 徒歩13分 - 0ヶ月
- 1ヶ月
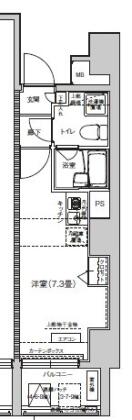
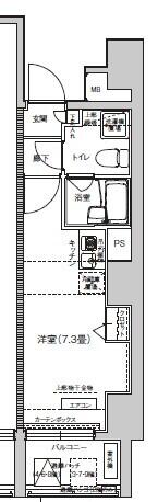
- 1K
- 21.03m²
- 2010年03月
- この物件の特徴
-
- この物件の設備
-
- この物件のおすすめポイント
-
保証人不要・駅近物件・分譲賃貸マンション・複数路線利用可能
2010年3月築で人気のシリーズ分譲賃貸マンション。
川崎駅徒歩5分の好立地物件。
イタリアのヒルタウンをモチーフに作られたエンタテイメントの街「ラ チッタデッラ」があり、映画館(チネチッタ)や個性豊かなレストラン・ショップが楽しめます。
周辺は商業ビルやオフィスビルが多く昼夜を問わず人通りが多い場所です。
駅前も繁華街のため、飲食店の選択肢が豊富で気分に合わせてお選びいただけます。
水商売のお部屋探しは『お水の賃貸』にお任せ下さい。
※このサイトは物件カタログになっておりますので、最新の空室確認お待ちしております。
≪周辺環境≫
・業務スーパー川崎駅前店…6m
・セブンイレブン川崎駅前店…10m
・喜多方ラーメン坂内川崎東田店…73m
・キッチンオリジン川崎小川町店…156m
・カフェ・ベローチェ川崎新川通り店…104m
・松屋川崎砂子店(マイカリー食堂併設)…135m
・デイリーヤマザキ川崎南町店…105m
・マイカリー食堂川崎砂子店(松屋併設)…136m
◇◆水商売・ナイトワークのお部屋探し◇◆
●お水の賃貸ではホームページに掲載されていない物件でも空室であればご紹介可能です。
1都3県どこの場所でも条件を頂ければ物件をご紹介させて頂きます。
お気軽にお問い合わせ下さい。
●『お水の賃貸』公式Instagramでは、イチオシキャバ嬢グラビア公開中
@omizunochintai
良かったらフォローしてください。
| 物件種別 | 賃貸マンション |
|---|---|
| 所在地 | 神奈川県川崎市川崎区砂子2丁目8-14 |
| その他沿線 | |
| 規模・構造 | 鉄筋コンクリート造 14階建て |
| 所在階 | |
| 償却 | |
| 駐車場 | |
| バイク置場 | |
| 駐輪場 | |
| 主要採光 | |
| 保証金 | |
| 保険 | 18,000円 |
| 契約期間 | 2年 |
| 更新料 | 新賃料の1ヶ月分 |
| 入居日 | |
| 取引態様 | 媒介 |
| 自社物件番号 | 7146 |
| 備考 | |
| 最終更新日 | 26年03月27日 |
『このWebサイトから自動的に電話をかけることは禁止されています。』と表示されることがございますが、ブラウザの仕様ですので問題ございません。『通話を許可』でおかけください。
- ※現在の空室と異なる場合がございます。最新の空室情報はお問い合わせください。
- ※ネットに掲載されている情報と現状が異なる場合は現状を優先とします。
- ※こちらのサイトは物件紹介サイトとなっております。ご成約済みの場合は別部屋・類似物件のご紹介を致します。











