おすすめ物件詳細
グリフィン川崎・西口
- 横浜・川崎
- 初期費用分割可
写真をタップして拡大
- 賃料相場:83,000円~円
- (管理・共益費:8,000円)
- JR京浜東北線「川崎」駅 徒歩6分
京急本線「京急川崎」駅 徒歩10分
京急大師線「京急川崎」駅 徒歩10分 - 0ヶ月
- 1ヶ月
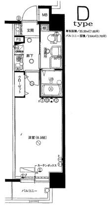
- 1K
- 25.3m²
- 2001年10月
- この物件の特徴
-
- この物件の設備
-
- この物件のおすすめポイント
-
保証人不要・分譲賃貸マンション・川崎駅徒歩6分で利用可能
2001年10月築で人気の分譲賃貸マンション。
川崎駅徒歩6分の好立地物件。
JR東海道線・京浜東北線・南武線、および京急線の複数路線が乗り入れるターミナル駅で東京と横浜の中間に位置する非常に利便性の高い街です。
駅直結の大型商業施設が多数あり買い物も楽々行えます。
ラ チッタデッラのような映画館やレストラン・ショップが集まるエンタメ施設もあります。
水商売のお部屋探しは『お水の賃貸』にお任せ下さい。
※このサイトは物件カタログになっておりますので、最新の空室確認お待ちしております。
≪周辺環境≫
・まいばすけっと川崎中幸町3丁目店…76m
・ファミリーマート中幸町三丁目店…97m
・セブンイレブン川崎中幸町店…156m
・ローソンラゾーナ川崎店…231m
・31アイスクリームラゾーナ川崎店…231m
・カプリチョーザトマト&ガーリックラゾーナ川崎店…231m
・西安餃子ラゾーナ川崎プラザ店…231m
・タリーズコーヒーラゾーナ川崎店…231m
◇◆水商売・ナイトワークのお部屋探し◇◆
●お水の賃貸ではホームページに掲載されていない物件でも空室であればご紹介可能です。
1都3県どこの場所でも条件を頂ければ物件をご紹介させて頂きます。
お気軽にお問い合わせ下さい。
●『お水の賃貸』公式Instagramでは、イチオシキャバ嬢グラビア公開中
@omizunochintai
良かったらフォローしてください。
| 物件種別 | 賃貸マンション |
|---|---|
| 所在地 | 神奈川県川崎市幸区内幸町3丁目24-2 |
| その他沿線 | |
| 規模・構造 | 鉄筋コンクリート造 11階建て |
| 所在階 | |
| 償却 | |
| 駐車場 | |
| バイク置場 | |
| 駐輪場 | |
| 主要採光 | |
| 保証金 | |
| 保険 | 20,000円 |
| 契約期間 | 2年 |
| 更新料 | 新賃料の1ヶ月分 |
| 入居日 | |
| 取引態様 | 媒介 |
| 自社物件番号 | 7061 |
| 備考 | |
| 最終更新日 | 26年03月27日 |
『このWebサイトから自動的に電話をかけることは禁止されています。』と表示されることがございますが、ブラウザの仕様ですので問題ございません。『通話を許可』でおかけください。
- ※現在の空室と異なる場合がございます。最新の空室情報はお問い合わせください。
- ※ネットに掲載されている情報と現状が異なる場合は現状を優先とします。
- ※こちらのサイトは物件紹介サイトとなっております。ご成約済みの場合は別部屋・類似物件のご紹介を致します。























