おすすめ物件詳細
ARANCIA本所吾妻橋(アランシア本所吾妻橋)
- 錦糸町
- 初期費用分割可
写真をタップして拡大
- 賃料相場:83,000円~円
- (管理・共益費:12,000円)
- 都営浅草線「本所吾妻橋」駅 徒歩3分
東武伊勢崎線「押上」駅 徒歩15分
東武伊勢崎線「浅草」駅 徒歩10分 - 1ヶ月
- 1ヶ月
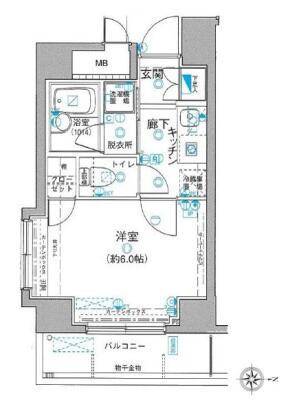
- 1K
- 21m²
- 2006年06月
- この物件の特徴
-
- この物件の設備
-
- この物件のおすすめポイント
-
◇保証人不要◇分譲賃貸マンション◇モニター付きオートロック◇浴室乾燥機◇
分譲賃貸マンション「ARANCIA本所吾妻橋(アランシア本所吾妻橋)」のご紹介です。
こちらの物件は都営浅草線「本所吾妻橋」駅から徒歩3分の駅近物件です。
駅近ですので電車移動の際は楽です。
防犯面ではモニター付きオートロックを備えています。
来訪者の顔を確認する事が出来ます。
玄関錠には防犯性の高いディンプルキーを採用しています。
室内設備には人気の浴室乾燥機を備えています。
梅雨の時期や雨の日など洗濯物が乾きにくい時に大活躍します。
保証人がいない、審査が不安、初期費用を抑えたいなどご気軽にご相談下さい。
お部屋探しは「お水の賃貸」にお任せください。
※このサイトは物件カタログになっておりますので、最新の空室確認お待ちしております。
《周辺施設》
・まいばすけっと本所吾妻橋駅前店…348m
・マルエツプチ本所四丁目店…378m
・ローソン墨田吾妻橋二丁目店…157m
・セブンイレブン墨田東駒形3丁目店…216m
・ドトールコーヒーショップ本所吾妻橋店…326m
・キッチンオリジン本所吾妻橋店…412m
・スシロー浅草吾妻橋店…395m
・どらっぐぱぱす東駒形店…67m
周辺環境も充実していますので快適に生活する事が出来ます。
◇◆水商売・ナイトワークのお部屋探し◇◆
●お水の賃貸ではホームページに掲載されていない物件でも空室であればご紹介可能です。
1都3県どこの場所でも条件を頂ければ物件をご紹介させて頂きます。
お気軽にお問い合わせ下さい。
●『お水の賃貸』公式Instagramでは、イチオシキャバ嬢グラビア公開中
@omizunochintai
良かったらフォローしてください^^
| 物件種別 | 賃貸マンション |
|---|---|
| 所在地 | 東京都墨田区東駒形3丁目16-12 |
| その他沿線 | |
| 規模・構造 | 鉄筋コンクリート造 7階建て |
| 所在階 | |
| 償却 | |
| 駐車場 | |
| バイク置場 | |
| 駐輪場 | |
| 主要採光 | |
| 保証金 | |
| 保険 | 20,000円 |
| 契約期間 | 2年 |
| 更新料 | 新賃料の1ヶ月分 |
| 入居日 | |
| 取引態様 | 媒介 |
| 自社物件番号 | 7012 |
| 備考 | |
| 最終更新日 | 26年03月27日 |
『このWebサイトから自動的に電話をかけることは禁止されています。』と表示されることがございますが、ブラウザの仕様ですので問題ございません。『通話を許可』でおかけください。
- ※現在の空室と異なる場合がございます。最新の空室情報はお問い合わせください。
- ※ネットに掲載されている情報と現状が異なる場合は現状を優先とします。
- ※こちらのサイトは物件紹介サイトとなっております。ご成約済みの場合は別部屋・類似物件のご紹介を致します。











