おすすめ物件詳細
GRAN PASEO駒沢大学(グランパセオ駒沢大学)
- 敷金・礼金ゼロ
- 築浅
- 初期費用分割可
写真をタップして拡大
- 賃料相場:214,000円~215,000円
- (管理・共益費:15,000円)
- 東急田園都市線「駒沢大学」駅 徒歩4分
東急田園都市線「三軒茶屋」駅 徒歩19分
東急世田谷線「西太子堂」駅 徒歩22分 - 0ヶ月
- 0ヶ月
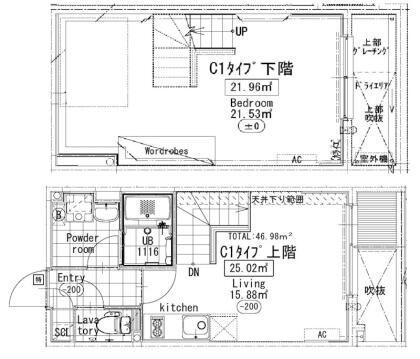
- 1LDK
- 45.18m²
- 2023年09月
- この物件の特徴
-
- この物件の設備
-
- この物件のおすすめポイント
-
保証人不要・敷金礼金0ヶ月・駅近物件・ルームシェア相談可・二人入居相談可・追い焚き機能付き・メゾネットタイプ
2023年9月築で人気のシリーズマンション。
敷金礼金0ヶ月の初期安物件です。
初期費用を抑えたい方必見。
メゾネットタイプとなっております。
プライベート空間を確保できる安心タイプです。
世田谷区エリアで働く水商売の方におすすめのお部屋です。
水商売のお部屋探しは『お水の賃貸』にお任せ下さい。
※このサイトは物件カタログになっておりますので、最新の空室確認お待ちしております。
≪周辺環境≫
・ユニクロ駒沢自由通り店…172m
・Can★Do駒沢店…172m
・マルエツ真中店…242m
・ファミリーマート駒沢大学駅前店…268m
・ドトールコーヒーショップ駒沢大学駅前店…316m
・サイゼリヤ駒沢大学駅東口店…334m
・サイゼリヤ駒沢大学駅東口店…334m
・ココカラファイン駒沢大学駅前店…275m
周辺環境も充実しております。
◇◆水商売・ナイトワークのお部屋探し◇◆
●お水の賃貸ではホームページに掲載されていない物件でも空室であればご紹介可能です。
1都3県どこの場所でも条件を頂ければ物件をご紹介させて頂きます。
お気軽にお問い合わせ下さい。
●『お水の賃貸』公式Instagramでは、イチオシキャバ嬢グラビア公開中
@omizunochintai
良かったらフォローしてください。
| 物件種別 | 賃貸マンション |
|---|---|
| 所在地 | 東京都世田谷区上馬3丁目11-3 |
| その他沿線 | |
| 規模・構造 | 鉄筋コンクリート造 4階建て |
| 所在階 | |
| 償却 | |
| 駐車場 | |
| バイク置場 | |
| 駐輪場 | |
| 主要採光 | 南向き |
| 保証金 | |
| 保険 | 23,000円 |
| 契約期間 | 普通賃貸借契約2年 |
| 更新料 | 新賃料の1ヶ月 |
| 入居日 | |
| 取引態様 | 媒介 |
| 自社物件番号 | 6646 |
| 備考 | |
| 最終更新日 | 26年03月27日 |
『このWebサイトから自動的に電話をかけることは禁止されています。』と表示されることがございますが、ブラウザの仕様ですので問題ございません。『通話を許可』でおかけください。
- ※現在の空室と異なる場合がございます。最新の空室情報はお問い合わせください。
- ※ネットに掲載されている情報と現状が異なる場合は現状を優先とします。
- ※こちらのサイトは物件紹介サイトとなっております。ご成約済みの場合は別部屋・類似物件のご紹介を致します。










