おすすめ物件詳細
プレール・ドゥーク北新宿Ⅲ
- 歌舞伎町
- 初期費用分割可
写真をタップして拡大
- 賃料相場:98,000円~110,000円
- (管理・共益費:5,000円~8,000円)
- JR中央線「市ケ谷」駅 徒歩5分
JR山手線「新大久保」駅 徒歩9分
都営大江戸線「東中野」駅 徒歩9分 - 0ヶ月~1ヶ月
- 0ヶ月~1ヶ月
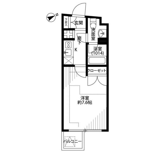
- 1K
- 22.07m²~23.11m²
- 2008年08月
- この物件の特徴
-
- この物件の設備
-
- この物件のおすすめポイント
-
保証人不要駅近物件・歌舞伎町エリア・シリーズ分譲マンション
歌舞伎町エリアで働く水商売の方にオススメ物件。
PLAIRE DEUXQ北新宿Ⅲ[プレール・ドゥーク北新宿Ⅲ]のご紹介です。
最寄の「大久保駅」まで徒歩5分の好立地♬
観光地としても人気の新大久保も徒歩圏内で活気ある人気のエリアです!
ルーフバルコニー付きとなっております♪
利用方法はお気軽にお問い合わせ下さい。
※このサイトは物件カタログになっておりますので、最新の空室確認お待ちしております。
《周辺施設》
・Olympic北新宿店…52m
・まいばすけっと新宿百人町2丁目店…262m
・サンクス大久保通り店…102m
・ローソンストア100北新宿店…104m
・ゲオ北新宿店…1280m
・スギ薬局北新宿3丁目店…129m
・北新宿三郵便局…81m
◇◆水商売・ナイトワークのお部屋探し◇◆
●お水の賃貸ではホームページに掲載されていない物件でも空室であればご紹介可能です。
1都3県どこの場所でも条件を頂ければ物件をご紹介させて頂きます。
お気軽にお問い合わせ下さい。
●『お水の賃貸』公式Instagramでは、イチオシキャバ嬢グラビア公開中
@omizunochintai
良かったらフォローしてください。
| 物件種別 | 賃貸マンション |
|---|---|
| 所在地 | 東京都新宿区北新宿3丁目8-4 |
| その他沿線 | |
| 規模・構造 | 鉄筋コンクリート造 5階建て |
| 所在階 | |
| 償却 | |
| 駐車場 | |
| バイク置場 | |
| 駐輪場 | あり(要確認) |
| 主要採光 | |
| 保証金 | |
| 保険 | あり(要確認) |
| 契約期間 | 普通賃貸借2年 |
| 更新料 | 新賃料1.25~1.5ヶ月分 |
| 入居日 | |
| 取引態様 | 媒介 |
| 自社物件番号 | 5877 |
| 備考 | |
| 最終更新日 | 26年03月27日 |
『このWebサイトから自動的に電話をかけることは禁止されています。』と表示されることがございますが、ブラウザの仕様ですので問題ございません。『通話を許可』でおかけください。
- ※現在の空室と異なる場合がございます。最新の空室情報はお問い合わせください。
- ※ネットに掲載されている情報と現状が異なる場合は現状を優先とします。
- ※こちらのサイトは物件紹介サイトとなっております。ご成約済みの場合は別部屋・類似物件のご紹介を致します。




























