おすすめ物件詳細
CLARISSA YOKOHAMA ALETTA(クラリッサ横浜アレッタ)
- 横浜・川崎
- ペット可
- 初期費用分割可
写真をタップして拡大
- 賃料相場:74,000円~円
- (管理・共益費:9,000円)
- 相鉄線「西横浜」駅 徒歩9分
京急本線「戸部」駅 徒歩10分
相鉄線「平沼橋」駅 徒歩13分 - 0ヶ月
- 0ヶ月
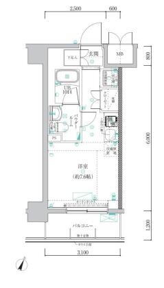
- Studio
- 21.08m²
- 2019年05月
- この物件の特徴
-
- この物件の設備
-
- この物件のおすすめポイント
-
【保証人不要、ペット相談、二人入居可、2019年5月築の分譲賃貸マンション。】
横浜エリアの人気分譲賃貸マンション『CLARISSA YOKOHAMA ALETTA(クラリッサ横浜アレッタ)』の紹介です。
物件は相鉄本線「西横浜駅」徒歩9分、横浜駅にも2駅で都内方面へのアクセス良好です。
鉄筋コンクリート造の地上7階建て、共用部にはオートロック&防犯カメラが設置され安心のセキリュティです。
間取りは洋室約7.6帖の1Kタイプ。
室内設備も充実しており、二人入居もご相談可能です。
横浜エリアで頑張る水商売の方におすすめの賃貸物件です。
最新の空室確認お待ちしております。
《周辺施設》
・カフェコロラド横浜西前店…124m
・横浜藤棚郵便局…133m
・食選館マルヤマ藤棚店…148m
・ローソン横浜中央二丁目店…229m
・FLET’S藤棚店…173m
・ヘルスケアセイジョー藤棚店…229m
・まいばすけっと藤棚店…297m
・セブンイレブン横浜中央2丁目店…374m
◇◆水商売・ナイトワークのお部屋探し◇◆
●お水の賃貸ではホームページに掲載されていない物件でも空室であればご紹介可能です。
1都3県どこの場所でも条件を頂ければ物件をご紹介させて頂きます。
お気軽にお問い合わせ下さい。
●『お水の賃貸』公式Instagramでは、イチオシキャバ嬢グラビア公開中
@omizunochintai
良かったらフォローしてください^^
#お水の賃貸 #キャバ嬢賃貸 #歌舞伎町賃貸 #審査簡単 #夜職賃貸 #水商売賃貸 #水商売不動産 #保証人不要 #初期費用分割可 #ペット飼育可
| 物件種別 | 賃貸マンション |
|---|---|
| 所在地 | 神奈川県横浜市西区中央2丁目18-3 |
| その他沿線 | |
| 規模・構造 | 鉄筋コンクリート造 7階建て |
| 所在階 | |
| 償却 | |
| 駐車場 | |
| バイク置場 | |
| 駐輪場 | あり(要確認) |
| 主要採光 | 東南向き |
| 保証金 | |
| 保険 | あり(要確認) |
| 契約期間 | 普通賃貸借2年 |
| 更新料 | 新賃料の1.5ヶ月分 |
| 入居日 | |
| 取引態様 | 媒介 |
| 自社物件番号 | 4581 |
| 備考 | |
| 最終更新日 | 26年03月27日 |
『このWebサイトから自動的に電話をかけることは禁止されています。』と表示されることがございますが、ブラウザの仕様ですので問題ございません。『通話を許可』でおかけください。
- ※現在の空室と異なる場合がございます。最新の空室情報はお問い合わせください。
- ※ネットに掲載されている情報と現状が異なる場合は現状を優先とします。
- ※こちらのサイトは物件紹介サイトとなっております。ご成約済みの場合は別部屋・類似物件のご紹介を致します。























