おすすめ物件詳細
CREVISTA代田橋(クレヴィスタ代田橋)
- 歌舞伎町
- 初期費用格安
- ペット可
- 敷金・礼金ゼロ
- 築浅
- 初期費用分割可
写真をタップして拡大
- 賃料相場:100,500円~円
- (管理・共益費:15,000円)
- 京王線「代田橋」駅 徒歩6分
京王井の頭線「新代田」駅 徒歩6分
小田急小田原線「下北沢」駅 徒歩13分 - 0ヶ月
- 0ヶ月
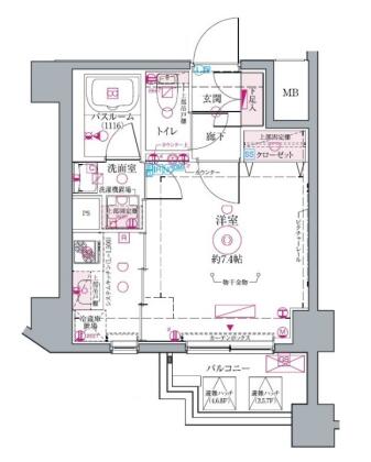
- 1K
- 25.50m²
- 2020年07月
- この物件の特徴
-
- この物件の設備
-
- この物件のおすすめポイント
-
■保証人不要■分譲賃貸マンション■フリーレント1ヶ月■ペット可■インターネット無料■敷金ゼロ礼金ゼロ■
~~~初期安キャンペーン物件~~~
敷金なし礼金なし・フリーレント1ヶ月が付いてますので初期費用をグッと抑えることが可能です。
(募集状況によって条件変更がある場合があります。詳しくは必ずお問い合わせ下さい。)
2020年7月築の高級分譲マンション「CREVISTA代田橋(クレヴィスタ代田橋)」のご紹介です。
築浅物件ですので外観・室内がとても綺麗です。
インターネットが無料で利用が出来ますので面倒なお手続き不要で引越しをした日から利用が可能です。
セキュリティ面ではモニター付オートロック、防犯カメラ、24時間緊急通報システム、ダブルロック、防犯性の高い鍵を採用していますので女性の一人暮らしも安心です。
共用部分にはエレベーターはもちろんメールボックス、駐輪場、敷地内駐車場、24時間ゴミ出しが可能な敷地内ゴミ置き場、いつでも荷物を受け取れます宅配ボックスを完備しています。
室内設備には2口のシステムキッチン、バストイレ別、シューズボックス、パウダールーム、ウォシュレット、室内洗濯機置き場、浴室乾燥機、独立洗面台、クローゼット、エアコンなど人気の設備機能が充実しています。
便利機能の「IoT」が使用できる物件です。
照明、エアコンなどをお手持ちのスマートフォンから操作が出来たり、「スマートロック」で玄関の鍵の施錠が可能です。
出先でも施錠状況の確認が取れますので閉め忘れの心配が解消できます。
ペットの飼育の相談が可能です。
飼育している方・これから飼育をお考えの方にもおすすめの物件です。
下北沢エリアのお部屋探しも「お水の賃貸」にお任せください。
※このサイトは物件カタログになっておりますので、最新の空室確認お待ちしております。
《周辺施設》
・まいばすけっと下北沢駅北店…946m
・京王ストア代田橋店…706m
・セブンイレブン世田谷羽根木2丁目店…338m
・ローソン大原一丁目店…506m
・キッチンオリジン代田橋店…624m
・スターバックスコーヒー下北沢店…1,132m
・ヘルスケアセイジョー代田橋北口店…610m
・ダイソー京王ストア代田橋店…707m
周辺環境も充実していますので住みやすいです。
◇◆水商売・ナイトワークのお部屋探し◇◆
●お水の賃貸ではホームページに掲載されていない物件でも空室であればご紹介可能です。
1都3県どこの場所でも条件を頂ければ物件をご紹介させて頂きます。
お気軽にお問い合わせ下さい。
●『お水の賃貸』公式Instagramでは、イチオシキャバ嬢グラビア公開中
@omizunochintai
良かったらフォローしてください^^
| 物件種別 | 賃貸マンション |
|---|---|
| 所在地 | 東京都世田谷区羽根木1丁目10-16 |
| その他沿線 | |
| 規模・構造 | 鉄筋コンクリート造 8階建て |
| 所在階 | |
| 償却 | |
| 駐車場 | あり(要確認) |
| バイク置場 | |
| 駐輪場 | あり(要確認) |
| 主要採光 | |
| 保証金 | |
| 保険 | 18,000円 |
| 契約期間 | 普通賃貸借契約2年 |
| 更新料 | 新賃料の1ヶ月分 |
| 入居日 | |
| 取引態様 | 媒介 |
| 自社物件番号 | 4045 |
| 備考 | |
| 最終更新日 | 26年03月27日 |
『このWebサイトから自動的に電話をかけることは禁止されています。』と表示されることがございますが、ブラウザの仕様ですので問題ございません。『通話を許可』でおかけください。
- ※現在の空室と異なる場合がございます。最新の空室情報はお問い合わせください。
- ※ネットに掲載されている情報と現状が異なる場合は現状を優先とします。
- ※こちらのサイトは物件紹介サイトとなっております。ご成約済みの場合は別部屋・類似物件のご紹介を致します。




























