おすすめ物件詳細
MS信濃町
- ペット可
- 敷金・礼金ゼロ
- 初期費用分割可
写真をタップして拡大
- 賃料相場:145,000円~156,000円
- (管理・共益費:15,000円~20,000円)
- 東京メトロ丸の内線「四谷三丁目」駅 徒歩5分
JR中央・総武線「信濃町」駅 徒歩6分
JR中央線「四ツ谷」駅 徒歩15分 - 0ヶ月
- 0ヶ月~1ヶ月
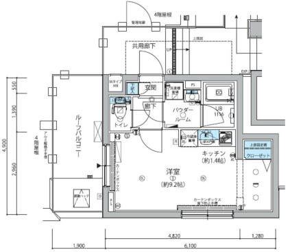
- 1K
- 27.56m²
- 2014年01月
- この物件の特徴
-
- この物件の設備
-
- この物件のおすすめポイント
-
■保証人不要■四谷三丁目エリアの分譲賃貸マンション■ペット飼育可■バストイレ別■
ペットと一緒に暮らせる特典付きの分譲賃貸マンション!!
『MS信濃町』
角部屋2面採光の明るいお部屋で人気の高いお部屋です(^^♪
女性の一人暮らしも安心・安全なセキュリティー!!
敷地内ゴミ置き場もあって24時間ゴミ出しOK☆彡
室内は洋室7帖の1Kタイプ!!
バストイレ別で洗面台付きのパウダールーム!!
システムキッチンやエアコンに浴室乾燥機など充実♪
新宿も六本木も近いので、水商売・キャバ嬢さんにオススメの賃貸物件です(^_-)-☆
※このサイトは物件カタログになっておりますので、最新の空室確認お待ちしております。
《周辺施設》
・MARUSHO総本店…337m
・まいばすけっと四谷2丁目店…581m
・ミニストップ新宿左門町店…121m
・ファミリーマート新宿信濃町店…196m
・ガスト四谷三丁目店…310m
・ドトールコーヒーショップ四谷3丁目店…354m
・サンドラッグCVS四谷三丁目店…337m
◇◆水商売・ナイトワークのお部屋探し◇◆
●お水の賃貸ではホームページに掲載されていない物件でも空室であればご紹介可能です。
1都3県どこの場所でも条件を頂ければ物件をご紹介させて頂きます。
お気軽にお問い合わせ下さい。
●『お水の賃貸』公式Instagramでは、イチオシキャバ嬢グラビア公開中
@omizunochintai
良かったらフォローしてください^^
| 物件種別 | 賃貸マンション |
|---|---|
| 所在地 | 東京都新宿区信濃町1-7 |
| その他沿線 | |
| 規模・構造 | 鉄筋コンクリート造 13階建て |
| 所在階 | |
| 償却 | |
| 駐車場 | |
| バイク置場 | あり(要確認) |
| 駐輪場 | あり(要確認) |
| 主要採光 | |
| 保証金 | |
| 保険 | 16,000円 |
| 契約期間 | 普通賃貸借契約2年 |
| 更新料 | 新賃料の1.5ヶ月分 |
| 入居日 | |
| 取引態様 | 媒介 |
| 自社物件番号 | 1245 |
| 備考 | |
| 最終更新日 | 26年03月27日 |
『このWebサイトから自動的に電話をかけることは禁止されています。』と表示されることがございますが、ブラウザの仕様ですので問題ございません。『通話を許可』でおかけください。
- ※現在の空室と異なる場合がございます。最新の空室情報はお問い合わせください。
- ※ネットに掲載されている情報と現状が異なる場合は現状を優先とします。
- ※こちらのサイトは物件紹介サイトとなっております。ご成約済みの場合は別部屋・類似物件のご紹介を致します。




























