おすすめ物件詳細
フェニックス新宿夏目坂
- 歌舞伎町
- ペット可
- 初期費用分割可
写真をタップして拡大
- 賃料相場:124,000円~162,000円
- (管理・共益費:10,000円~12,000円)
- 都営大江戸線「若松河田」駅 徒歩4分
東京メトロ東西線「早稲田」駅 徒歩9分
都営新宿線「曙橋」駅 徒歩14分 - 1ヶ月
- 1ヶ月
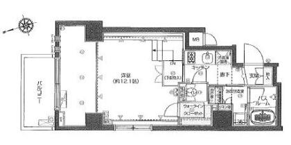
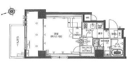
- 1K
- 31.61m²~38.06m²
- 2012年08月
- この物件の特徴
-
- この物件の設備
-
- この物件のおすすめポイント
-
■保証人不要■ペット可■二人入居可■トランクルーム■
駅近で適度に歌舞伎町から離れている丁度いい立地の分譲賃貸マンション。
PHOENIX新宿夏目坂[フェニックス新宿夏目坂]
周辺もコンビニやスーパーもあって生活しやすいエリアです。
しかも!ウォークインクローゼットのほかにトランクルームも付いていて収納力抜群!!
衣装が多いキャバ嬢さんにはうれしい収納力です。
歌舞伎町エリアで頑張る、水商売の方にオススメの賃貸物件です!
水商売のお部屋探しは『お水の賃貸』にお任せ下さい。
※このサイトは物件カタログになっておりますので、最新の空室確認お待ちしております。
《周辺施設》
・まいばすけっと新宿原町3丁目店…14m
・ライフ若松河田駅前店…279m
・よしや柳町店…381m
・ナチュラルローソン東京女子医大外来棟店…169m
・セブンイレブン新宿若松町店…251m
・ローソン新宿若松町店…270m
・サイゼリヤ牛込柳町店…380m
・スギ薬局新宿若松町店…295m
◇◆水商売・ナイトワークのお部屋探し◇◆
●お水の賃貸ではホームページに掲載されていない物件でも空室であればご紹介可能です。
1都3県どこの場所でも条件を頂ければ物件をご紹介させて頂きます。
お気軽にお問い合わせ下さい。
●『お水の賃貸』公式Instagramでは、イチオシキャバ嬢グラビア公開中
@omizunochintai
良かったらフォローしてください。
| 物件種別 | 賃貸マンション |
|---|---|
| 所在地 | 東京都新宿区原町3丁目33-2 |
| その他沿線 | |
| 規模・構造 | 鉄筋コンクリート造 10階建て |
| 所在階 | |
| 償却 | |
| 駐車場 | |
| バイク置場 | |
| 駐輪場 | あり(要確認) |
| 主要採光 | |
| 保証金 | |
| 保険 | 15,000円 |
| 契約期間 | 普通賃貸借2年 |
| 更新料 | 新賃料の1ヶ月分 |
| 入居日 | |
| 取引態様 | 媒介 |
| 自社物件番号 | 0061 |
| 備考 | |
| 最終更新日 | 26年03月27日 |
『このWebサイトから自動的に電話をかけることは禁止されています。』と表示されることがございますが、ブラウザの仕様ですので問題ございません。『通話を許可』でおかけください。
- ※現在の空室と異なる場合がございます。最新の空室情報はお問い合わせください。
- ※ネットに掲載されている情報と現状が異なる場合は現状を優先とします。
- ※こちらのサイトは物件紹介サイトとなっております。ご成約済みの場合は別部屋・類似物件のご紹介を致します。




























