4月5日(日曜日)本日のおすすめ物件。
中野・新中野エリアでお部屋探しをされている水商売・ナイトワーク勤務の方に向けて、駅近×新築×ハイグレード設備が揃ったハイクラスレジデンスをご紹介いたします。
今回ご紹介する物件は、都心へのアクセス力と落ち着いた住環境を両立した人気エリア「中野新橋」に誕生した新築高級賃貸マンションです。
まず注目すべきは、最寄り駅から徒歩2分という圧倒的な立地条件。ナイトワークで帰宅時間が遅くなりがちな方にとって、この“駅近”という要素は日々の安心感とストレス軽減に直結します。
さらに、タクシーで歌舞伎町エリアまで約3.2km圏内という距離感も非常に魅力的。終電後でもスムーズに帰宅できるため、時間に縛られない働き方をされている方にも最適なロケーションです。
中野新橋エリアは、都心近接でありながらも騒がしさが少なく、落ち着いた住宅街が広がる住みやすい街。スーパーやコンビニ、飲食店も程よく揃っており、日常生活に不便を感じることはありません。
また、徒歩圏内の「新中野」駅も利用可能なため、丸ノ内線を活用して新宿・銀座・東京駅方面へダイレクトアクセスが可能。オン・オフ問わず移動のしやすさは大きな魅力です。
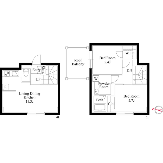
今回ご紹介するお部屋は、60.54㎡のゆとりある2LDKタイプ。
単身の方はもちろん、同棲やルームシェアを検討されている方にも非常に人気の高い間取りとなっております。
リビングダイニングキッチンは約11.3帖の広さがあり、開放感と実用性を兼ね備えた設計。家具の配置もしやすく、
・ゆったりとしたソファスペース
・ダイニングテーブルでの食事空間
・テレビや収納家具の設置
など、生活スタイルに合わせた自由なレイアウトが可能です。
さらに、2つのベッドルーム(約5.4帖・約5.7帖)を確保しているため、
・仕事用とプライベート空間を分けたい方
・荷物が多い方
・来客用の部屋を確保したい方
にも非常に使い勝手の良い間取りです。
特に注目したいのが「ルーフバルコニー付き」という点。
一般的なバルコニーとは異なり、開放感のある広々とした空間で、洗濯物を干すだけでなく、
・外の空気を感じながらリラックス
・ちょっとしたガーデニング
・気分転換のスペース
としても活用できる贅沢な仕様となっております。
室内設備も新築ならではのハイグレード仕様。
システムキッチンは使い勝手の良い設計で、日常的に料理をされる方にも満足いただけるクオリティ。水回りも非常に綺麗で、独立洗面台や浴室乾燥機など、生活の質を高める設備がしっかりと整っています。
さらに、エアコンも複数基設置されているため、季節を問わず快適な室内環境を維持できます。
インターネット使用料無料という点も見逃せないポイント。毎月の固定費を抑えながら、高速通信環境を利用できるため、
・動画配信サービス
・リモートワーク
・オンラインゲーム
など、様々な用途に対応可能です。
セキュリティ面においても非常に充実しており、
・オートロック
・ダブルロック
・防犯カメラ
・モニター付インターホン
といった設備が揃っているため、防犯意識の高い方にも安心してお住まいいただけます。
また、宅配ボックスや24時間利用可能なゴミ置き場といった共用設備も完備されており、忙しい日々の中でもストレスなく生活できる環境が整っています。
ペット飼育も相談可能なため、大切な家族と一緒に新生活をスタートできる点も大きな魅力です。
新築・駅近・広さ・設備・セキュリティと、全てのバランスが非常に優れたハイグレード物件。
条件の良い2LDKは特に動きが早いため、少しでも気になる方はお早めのお問い合わせをおすすめいたします。
✔ 駅徒歩2分の圧倒的立地
✔ 新築×RC造の安心構造
✔ 60㎡超の広々2LDK
✔ ルーフバルコニー付き
✔ インターネット無料
✔ ペット飼育相談可
人気条件が揃った希少な一部屋です。お見逃しなく。
【外観】


【間取り】

【募集図面】

【物件概要】
所在地:東京都中野区本町5丁目3-以下未定
交通:東京メトロ丸ノ内線「中野新橋」駅 徒歩2分
交通:東京メトロ丸ノ内線「新中野」駅 徒歩11分
築年月:2026年5月29日
構造:鉄筋コンクリート造 地上5階建
総戸数:11戸
間取り:2LDK
専有面積:60.54㎡
【賃貸条件】
賃料:257,000円
共益費:10,000円
敷金:0ヶ月
礼金:0ヶ月
保証金:1ヶ月(契約時償却)
契約期間:普通賃貸借契約2年
更新料:要確認
入居時期:2026年6月13日予定
【共用設備】
・モニター付オートロックシステム
・防犯カメラ
・エレベーター
・宅配ボックス
・メールボックス
・敷地内ゴミ置き場
・駐輪場
【室内設備】
・バストイレ別
・シューズボックス
・温水洗浄便座
・パウダールーム
・独立洗面台
・室内洗濯機置場
・浴室乾燥暖房機
・システムキッチン
・冷蔵庫置場
・フローリング
・クローゼット
・エアコン
・ルーフバルコニー
【備考】
・保証人不要
・初期費用分割可
・初期費用のクレジット決済可能
・水商売相談可能
・二人入居
・インターネット無料
・ペット相談可
・メゾネットタイプ
・駅近
・デザイナーズマンション
【周辺施設】
・キッチンオリジン中野新橋駅前店…44m
・ケンタッキーフライドチキン中野新橋店…70m
・セブンイレブン中野新橋店…131m
・松屋中野新橋店…92m
・中野新橋駅前郵便局…216m
・ファミリーマート+クスリのヒグチ中野新橋駅前店…118m
・ファミリーマート薬ヒグチ中野新橋駅前店…119m
・まいばすけっと中野新橋駅北店…132m
【お知らせ】
※水商売賃貸・ナイトワークのお部屋探し専門のお水の賃貸ではホ
空室であれば東京・神奈川・埼玉・千葉の物件全てご紹介可能です。
他社で断られた物件も、当社であれば相談できる場合もございます。
また、希望条件に合わせてのご紹介も可能ですのでお気軽にお問合せ下さい。
水商売の方のお部屋探しは『お水の賃貸』にお気軽にご相談ください。











