今回ご紹介する物件は、上野エリアへのアクセスに優れた「入谷・三ノ輪エリア」に位置する分譲賃貸マンションです。
都心主要エリアへのアクセスの良さに加え、生活環境も整っているため、働きやすさと住みやすさの両方を重視したい方におすすめのロケーションです。
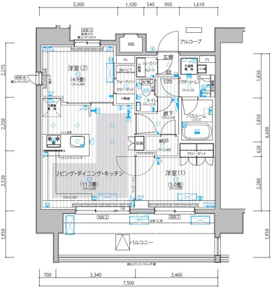
お部屋は51.00㎡のゆとりある2LDKタイプです。
LDKは約11.3帖としっかりとした広さが確保されており、ソファやダイニングテーブルを配置しても余裕のある空間設計。
「寝室」「仕事部屋」「衣装部屋」など用途に応じて使い分けることができ、荷物が多い方にも最適な間取りとなっています。
また、南東向き・2面採光のため、室内は明るく開放感のある空間。
日中の自然光をしっかり取り込めるため、居心地の良い住環境が整っています。
設備面では分譲仕様ならではの充実した内容となっており、3口ガスコンロ付きシステムキッチンや食器洗乾燥機、浴室乾燥機・追い焚き機能付きバス、独立洗面台など、生活の質を高める設備が揃っています。
ウォークインクローゼットに加え、クローゼットも複数設置されているため収納力も抜群。
荷物が多い方でもすっきりとしたお部屋を保つことができます。
さらにインターネット使用料無料のため、毎月の固定費を抑えつつ快適なネット環境を利用可能。
動画視聴もストレスなく行えます。
セキュリティ面も安心で、オートロックやTVモニター付きインターホンを完備。
夜遅い帰宅が多いナイトワークの方でも安心して生活できます。
交通面では、東京メトロ日比谷線「三ノ輪」駅徒歩8分、「入谷」駅徒歩9分に加え、都電荒川線「三ノ輪橋」駅も利用可能。
上野・銀座・六本木方面へもアクセスしやすく、通勤・プライベートともに利便性の高い立地です。
また、ナイトワークの方に向けた審査対応も柔軟で、
・ナイトワーカー審査OK
・外国籍・海外審査対応可能
といった点も大きな魅力となっています。
築浅・広さ・設備・立地とバランスの取れた人気物件のため、早期成約が予想されます。
少しでも気になる方は、お早めのお問い合わせをおすすめいたします。
【外観】

【間取り】

【内観】

【キッチン】

【独立洗面台】

【バスルーム】

【トイレ】

【室内設備】

【バルコニー】

【共有部分】
【募集図面】

【物件概要】
所在地:東京都台東区竜泉3丁目12-5
交通:東京メトロ日比谷線「三ノ輪」駅 徒歩8分
交通:東京メトロ日比谷線「入谷」駅 徒歩9分
交通:都電荒川線「三ノ輪橋」駅 徒歩14分
築年月:2022年3月
構造:鉄筋コンクリート造 地上13階建
間取り:1LDK
専有面積:51.00㎡
【賃貸条件】
賃料:200,000円
共益費:10,000円
敷金:0ヶ月
礼金:0.5ヶ月
契約期間:普通賃貸借契約2年
更新料:新賃料1.5ヶ月分
入居時期:2026年4月中旬予定
【共用設備】
・モニター付オートロックシステム
・防犯カメラ
・エレベーター
・宅配ボックス
・メールボックス
・敷地内ゴミ置き場
【室内設備】
・バストイレ別
・シューズボックス
・温水洗浄便座
・パウダールーム
・独立洗面台
・室内洗濯機置場
・浴室乾燥暖房機
・追い焚き機能付きバス
・システムカウンターキッチン(3口ガス)
・冷蔵庫置場
・フローリング
・エアコン
・ウォークインクローゼット
・食洗器
【備考】
・保証人不要
・初期費用分割可
・初期費用のクレジット決済可能
・2人入居可
・ペット可
【周辺施設】
・台東竜泉郵便局…154m
・ローソン台東病院店…373m
・まいばすけっと竜泉1丁目店…292m
・ファミリーマート千束三丁目店…298m
・ミニストップ入谷2丁目店…348m
・肉のハナマサ千束店…387m
・ビッグ・エー台東千束四丁目店…473m
・すき家台東下谷店…618m
【お知らせ】
※水商売賃貸・ナイトワークのお部屋探し専門のお水の賃貸ではホ
空室であれば東京・神奈川・埼玉・千葉の物件全てご紹介可能です。
他社で断られた物件も、当社であれば相談できる場合もございます。
また、希望条件に合わせてのご紹介も可能ですのでお気軽にお問合せ下さい。
水商売の方のお部屋探しは『お水の賃貸』にお気軽にご相談ください。











