3月20日(金曜日)本日のおすすめ物件。
渋谷区エリアでお部屋探しをされている水商売・ナイトワーク勤務の方におすすめの賃貸マンションをご紹介します。
今回ご紹介する物件は
フェニックス西参道タワー 2004号室
大人気のタワーマンションです。
京王新線「初台」駅徒歩5分の好立地にある、ハイグレードな2LDKマンションです。
さらに
✔ 駅徒歩5分の好立地
✔ 80㎡超の広々2LDK
✔ 二人入居可能・ファミリー相談可
✔ 高層階×南向きで日当たり良好
と、ハイクラスな条件が揃った人気物件です。
■ 初台駅徒歩5分の好アクセス
最寄り駅は
・京王新線「初台」駅 徒歩5分
・小田急線「参宮橋」駅 徒歩5分
新宿エリアへのアクセスが非常に良く、
・歌舞伎町
・新宿
・六本木方面
などナイトワークの通勤にも便利な立地です。
タクシーでも帰宅しやすく、水商売の方にも非常に人気のエリアです。
さらに、都心にありながら落ち着いた住環境が魅力の代々木エリアに位置しており、オンとオフの切り替えがしやすい点もポイント。忙しい日々の中でも、しっかりとリラックスできる住環境が整っています。
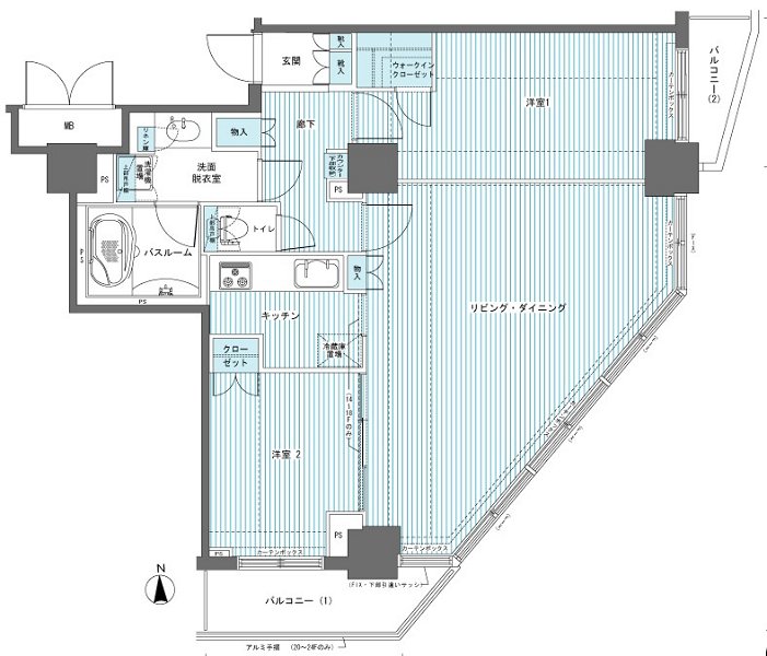
■ 80㎡超のゆとりある2LDK
専有面積は
81.85㎡の広々2LDKタイプ
LDKは約20帖の開放的な空間で、
・大型ソファ
・ダイニングテーブル
を置いても余裕のある設計です。
空間にゆとりがあるため、インテリアにもこだわることができ、自分好みの上質な住空間を演出できます。来客時にもゆったりと対応できる広さがあり、プライベートも充実します。
洋室も
・約8.6帖
・約5.8帖
としっかり広さが確保されており、
・寝室
・衣装部屋
など用途を分けて快適に使えます。収納スペースとしても活用しやすく、荷物の多い方でも安心してお住まいいただけます。
■ 高層階・南向きで日当たり良好
2004号室は高層階のお部屋で
南向きのため日当たり・眺望ともに良好
明るく開放感のある室内で、ワンランク上の生活が可能です。
大きな窓から差し込む自然光が室内全体を明るく照らし、日中は照明いらずの快適な空間に。高層階ならではの抜け感のある眺望も魅力で、都心にいながら開放的な暮らしを実現できます。
■ セキュリティ・設備も充実
共用部には
・TVモニター付オートロック
・宅配ボックス
・エレベーター
などタワーマンションならではの充実設備。
防犯面もしっかりしているため、女性の一人暮らしや夜遅い帰宅が多い方でも安心して生活できます。不在時でも荷物の受け取りが可能な宅配ボックスは、忙しい方にとって嬉しい設備です。
室内も
・独立洗面台
・浴室乾燥機
・温水洗浄便座
など水回り設備が整っており、日々の生活をより快適にサポートします。
■ ペット相談・二人入居可能
ペット相談可・二人入居可能のご相談も可能です。
広さ・立地・設備すべてを兼ね備えたバランスの良いお部屋のため、長く安心して住み続けたい方にも最適な一室です。
など柔軟に対応しておりますので、水商売・ナイトワーク勤務の方もお気軽にご相談ください。
【外観】

【間取り】

【内観】

【キッチン】

【独立洗面台】

【バスルーム】

【トイレ】

【玄関】

【共有部分】

【募集図面】

【物件概要】
所在地:東京都渋谷区代々木4丁目30-5
交通:京王新線「初台」駅 徒歩5分
交通:小田急線「参宮橋」駅 徒歩5分
築年数:2008年8月8日築
構造:鉄筋コンクリート造 地上24階建
総戸数:不明
間取り:2LDK
専有面積:81.85㎡
【賃貸条件】
賃料:391,000円
管理費:30,000円
敷金:1ヶ月
礼金:1ヶ月
契約期間:定期借家契約2年
更新料:-
入居時期:相談
【共用設備】
・モニター付オートロックシステム
・防犯カメラ
・エレベーター
・宅配ボックス
・メールボックス
・敷地内ゴミ置き場
【室内設備】
・バストイレ別
・シューズボックス
・温水洗浄便座
・パウダールーム
・独立洗面台
・室内洗濯機置場
・浴室乾燥暖房機
・追い焚き機能付きバス
・システムキッチン(3口ガス)
・冷蔵庫置場
・フローリング
・エアコン
・角部屋
・二面採光
【備考】
・保証人不要
・初期費用分割可
・初期費用のクレジット決済可能
・2人入居可
・ペット相談可
【周辺施設】
・新宿パークタワー…264m
・マルエツプチ西新宿三丁目店…447m
・成城石井オペラシティ店…347m
・ファミリーマート代々木四丁目店…116m
・セブンイレブン代々木3丁目店…190m
・カフェ・ベローチェ代々木三丁目店…292m
・薬ヒグチパークタワー店…277m
・新宿パークタワー内郵便局…263m
・新宿中央公園…642m
【お知らせ】
※水商売賃貸・ナイトワークのお部屋探し専門のお水の賃貸ではホ
空室であれば東京・神奈川・埼玉・千葉の物件全てご紹介可能です。
他社で断られた物件も、当社であれば相談できる場合もございます。
また、希望条件に合わせてのご紹介も可能ですのでお気軽にお問合せ下さい。
水商売の方のお部屋探しは『お水の賃貸』にお気軽にご相談ください。











