3月8日(日曜日)本日のおすすめ物件。
最上階・角部屋。
59㎡超えのゆとりある2LDK。
床暖房付きデザイナーズレジデンス。
東京都足立区千住東1丁目に位置するデザイナーズマンション「ZOOM北千住」のご紹介です。
スタイリッシュな外観が印象的な鉄筋コンクリート造レジデンス。2021年3月築、地上8階建のしっかりとした造りの建物です。
交通は東京メトロ日比谷線「北千住」駅徒歩6分、東京メトロ千代田線「北千住」駅徒歩6分の場所に位置しています。
複数路線が利用可能な北千住駅は、都心主要エリアへのアクセスが非常に便利なターミナル駅です。
上野・銀座・大手町・表参道方面へもスムーズに移動可能です。
駅周辺は大型商業施設や飲食店も充実しており、生活利便性の高さも魅力です。
建物にはTVモニター付オートロックを完備しています。
宅配ボックス、インターネット無料、Wi-Fi完備、CATV導入など、分譲仕様ならではの充実した共用設備が整っております。
今回ご紹介のお部屋は最上階8階部分・東向き・角部屋です。
上階がないため生活音のストレスが少なく、角部屋ならではの開放感も魅力です。
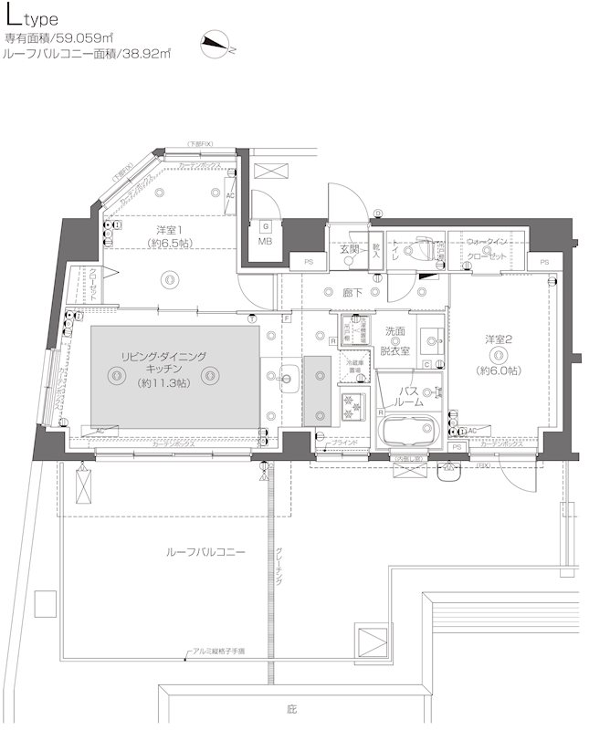
専有面積は59.05㎡の2LDK(LDK11.3帖・洋室6.5帖・洋室6帖)。
各洋室が6帖以上確保されており、寝室とワークスペースをしっかり分けたい方や、二人入居・コンパクトファミリーにもおすすめの広さです。
LDKには床暖房を完備しています。
冬場も足元からじんわりと暖まり、快適にお過ごしいただけます。
キッチンは3口ガスコンロのシステムキッチンです。
お料理をされる方にも十分な設備が整っており、日常使いに不便を感じさせません。
浴室には浴室換気乾燥機を備えています。
追い焚き機能も備わっており、忙しい日々の中でもゆったりとしたバスタイムをお楽しみいただけます。
独立洗面台・脱衣室・温水洗浄便座など、水回り設備も充実しています。
さらにウォークインクローゼット付きです
収納力が高く、室内をすっきりと保つことが可能です。
広さ・設備・立地のバランスが取れた、非常に完成度の高い2LDKです。
ご不明点やご質問などございましたら、どうぞお気軽にお問い合わせください。
【外観】

【間取り】

【内観】


【キッチン】

【独立洗面台】

【バスルーム】

【トイレ】

【玄関】

【バルコニー】

【共有部分】

【募集図面】

【物件概要】
所在地:東京都足立区千住東1丁目18-11
交通:東京メトロ日比谷線「北千住」駅 徒歩6分
交通:東京メトロ千代田線「北千住」駅 徒歩6分
築年数:2021年3月15日築
構造:鉄筋コンクリート造 地上8階建
間取り:2LDK
専有面積:59.05㎡
所在階:8階(最上階)
向き:東
【賃貸条件】
賃料:244,000円
管理費:15,000円
敷金:なし
礼金:1ヶ月
契約期間:普通賃貸借契約2年
更新料:新賃料1ヶ月分
入居時期:2026年4月上旬予定
【共用設備】
・モニター付オートロックシステム
・エレベーター
・宅配ボックス
・メールボックス
・駐輪場
【室内設備】
・バストイレ別
・シューズボックス
・温水洗浄便座
・パウダールーム
・独立洗面台
・室内洗濯機置場
・浴室乾燥暖房機
・システムカウンターキッチン
・3口コンロ
・冷蔵庫置場
・フローリング
・エアコン
・床暖房
【備考】
・保証人不要
・初期費用分割可
・初期費用のクレジット決済可能
・2人入居可
・分譲賃貸マンション
・デザイナーズマンション
・インターネット無料
【周辺施設】
・miniピアゴ千住1丁目店…611m
・東武ストア北千住店…711m
・ファミリーマート千住警察署前店…433m
・セブンイレブン千住旭町店…309m
・サンマルクカフェ東武北千住店…467m
・モスバーガー北千住センター通り店…681m
・ほっともっと千住1丁目店…694m
・マツモトキヨシ…497m
【お知らせ】
※水商売賃貸・ナイトワークのお部屋探し専門のお水の賃貸ではホ
空室であれば東京・神奈川・埼玉・千葉の物件全てご紹介可能です。
他社で断られた物件も、当社であれば相談できる場合もございます。
また、希望条件に合わせてのご紹介も可能ですのでお気軽にお問合せ下さい。
水商売の方のお部屋探しは『お水の賃貸』にお気軽にご相談ください。











