1月14日(水曜日)本日のおすすめ物件。
都心の中心にある高級賃貸レジデンス。
ゆったり2LDK
東京都中央区西神田2丁目に位置する「レ・ジェイドクロス千代田神保町」のご紹介です。
千代田区神保町エリアが古書の香りとアカデミズムが交差するこの街は、東京の中でも独自の文化圏を形成し知的で落ち着いた空気を纏う稀有なエリアです。
交通の便は東京メトロ半蔵門線「神保町」駅から徒歩5分、東京メトロ東西線「九段下」駅から徒歩7分、JR中央・総武線「水道橋」駅から徒歩6分の好立地物件です。
複数駅・複数路線の利用が可能ですので交通の便がとてもいいです。
徒歩圏内にはスーパーやコンビニがありますので普段の買い物で困ることはないです。
さらに古書店街、カフェ、喫茶店、老舗洋食店、カレーの名店、スポーツ施設、劇場、ギャラリーなど、多様な文化資源が徒歩圏に広がっています。
休日には散策するだけで新しい発見があり、日常が知的好奇心で満たされる街です。
共用部にはオートロック、宅配ボックス、防犯カメラなど、都市生活者が求める安心と効率性を両立しています。
防犯面でしっかりしていますので安心して生活する事が出来ます。
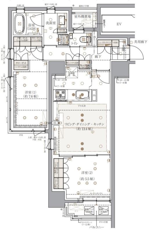
間取りは2LDKです。
2人入居やファミリーの方にもおすすめの間取りです。
LDK部分には床暖房を完備していますので今の時期に大活躍します。
その他にも人気のカウンターキッチン、浴室乾燥機、追い焚き機能付きバスなど快適に過ごすことが出来る設備機能が充実しています。
快適に生活する事が出来ます。
ペット飼育の相談が可能です。
神保町エリアは散歩に適したルートが多く、北の丸公園や皇居外苑といった緑豊かな環境も徒歩圏にあるため、ペットとの暮らしが自然と豊かになります。
都心でありながら、自然と文化が共存するこの街ならではの“穏やかな日常”が手に入ります。
また、インターネットが無料で利用可能なため、月々のネット代がかからず、引越し当日からすぐに利用できるのも嬉しいポイントです。
ご不明点やご質問などございましたら、どうぞお気軽にお問い合わせください。
【外観】

【間取り】

【内観】


【キッチン】

【独立洗面台】

【バスルーム】

【トイレ】

【室内設備】

【玄関】

【エントランス】

【募集図面】

【物件概要】
所在地:東京都千代田区西神田2丁目4-16
交通:東京メトロ半蔵門線「神保町」駅 徒歩5分
交通:東京メトロ東西線「九段下」駅 徒歩7分
交通:JR中央・総武線「水道橋」駅 徒歩6分
築年数:2023年9月築
入居時期:2026年1月18日
構造:鉄筋コンクリート造
規模:地上14階建て
間取り:2LDK
専有面積:65.08㎡
【賃貸条件】
賃料 :395000円
管理費:0円
敷金:1ヶ月
礼金:1ヶ月
契約期間:普通借家契約2年
更新料:新賃料1ヶ月分
【共用設備】
・モニター付オートロックシステム
・防犯カメラ
・エレベーター
・メールボックス
・宅配ボックス
・敷地内ゴミ置き場
・駐輪場
・バイク置き場
【室内設備】
・バストイレ別
・シューズボックス
・温水洗浄便座
・パウダールーム
・独立洗面台
・室内洗濯機置場
・浴室乾燥暖房機
・追い焚き機能付きバス
・システムカウンターキッチン
・3口コンロ
・冷蔵庫置場
・クローゼット
・フローリング
・エアコン
【備考】
・保証人不要
・初期費用分割可
・初期費用のクレジット決済可能
・ペット可
・インターネット無料
【周辺施設】
・CoCo壱番屋千代田区専大通店…10m
・セブンイレブン神田専大通り店…125m
・まいばすけっと神田神保町店…170m
・モスバーガー水道橋西通り店…167m
・ほっともっと西神田2丁目店…231m
・サブウェイ日本大学法学部神田三崎町キャンパス店…264m
・マルエツプチ神田神保町二丁目店…250m
・カフェ・ベローチェ三崎町店…302m
【お知らせ】
※水商売賃貸・ナイトワークのお部屋探し専門のお水の賃貸ではホ
空室であれば東京・神奈川・埼玉・千葉の物件全てご紹介可能です。
他社で断られた物件も、当社であれば相談できる場合もございます。
また、希望条件に合わせてのご紹介も可能ですのでお気軽にお問合せ下さい。
水商売の方のお部屋探しは『お水の賃貸』にお気軽にご相談ください。











