12月14日(日曜日)本日のおすすめ物件。
北参道エリア。
築浅物件マンション。
東京都渋谷区千駄ヶ谷三丁目に位置する「神宮北参道レジデンス」のご紹介です。
2022年8月竣工の鉄筋コンクリート造・地上12階建て、総戸数32戸の築浅高級賃貸マンションです。
外観はスタイリッシュなデザインで、都会的な洗練と落ち着きを兼ね備えています。明治通りから一本奥まった立地にあるため、交通音も少なく静かな住環境を実現しています。
東京メトロ副都心線「北参道」駅から徒歩3分という駅近の利便性を誇り、さらにJR山手線「原宿」駅へ徒歩9分、JR中央・総武線「千駄ヶ谷」駅へ徒歩10分、都営大江戸線「国立競技場」駅へ徒歩10分と、複数路線を自在に使いこなせるアクセス環境が整っています。
新宿・渋谷・表参道といった主要エリアへも短時間で移動可能で、都心生活を存分に楽しめる立地です。
周辺環境も非常に充実しています。
徒歩2分には「オーケー千駄ヶ谷店」があり、日常の買い物に便利。さらに「スターバックス」や「成城石井」などお洒落なカフェやショップも点在し、北参道エリアならではの洗練された都市生活を楽しめます。
新宿御苑や明治神宮といった緑豊かなスポットも徒歩圏内にあり、都心にいながら自然を感じられる環境です。
共用設備も安心感を高める仕様です。モニター付きオートロック、防犯カメラ、宅配ボックス、敷地内ゴミ置場を備えています。
24時間ゴミ出しが可能です。
ペット飼育も相談可能です。
小型犬または猫1匹(体長50cm以下、体重10kg以下)まで飼育可能。
インターネットWi-Fiが無料で利用が可能です。
月々ネット代かかりませんのでお得です。
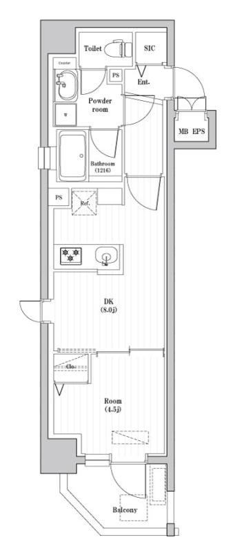
間取りは人気の1LDKです。
キッチンはカウンターキッチンタイプのお洒落な間取りです。
室内設備には人気設備機能が充実していますので快適に生活する事が出来ます。
ご不明点、ご質問などご気軽にお問合せください。
【外観】

【間取り】

【内観】


【キッチン】

【独立洗面台】

【バスルーム】

【トイレ】

【設備】

【玄関】

【バルコニー】

【募集図面】

【物件概要】
所在地:東京都渋谷区千駄ヶ谷3丁目2-7
交通:東京メトロ副都心線「北参道」駅 徒歩3分
交通:JR山手線「原宿」駅 徒歩9分
交通:JR中央・総武線「千駄ケ谷」駅 徒歩10分
築年数:2025年10月築
入居時期:即入居
構造:鉄筋コンクリート造
規模:地上6階建て
間取り:1LDK
【賃貸条件】
賃料 :199,000円
管理費:9,000円
敷金:1ヶ月
礼金:0ヶ月
契約期間:普通借家契約2年
更新料:新賃料の1ヶ月
【共用設備】
・モニター付オートロックシステム
・エレベーター
・メールボックス
・宅配ボックス
・敷地内ゴミ置き場
【室内設備】
・モニター付インターホン
・バストイレ別
・システムキッチン
・パウダールーム
・独立洗面台
・浴室乾燥暖房機
・追い焚き機能付きバス
・温水洗浄便座
・室内洗濯機置場
・冷蔵庫置場
・フローリング
【備考】
・保証人不要
・初期費用分割可
・初期費用のクレジット決済可能
・ペット可
・インターネット無料
【周辺施設】
・オーケー千駄ヶ谷店…127m
・成城石井千駄ヶ谷店…200m
・ミニストップ千駄ヶ谷3丁目店…129m
・セブンイレブン北参道駅前店…136m
・スターバックスコーヒー北参道店…205m
・サブウェイ北参道駅前店…257m
・ドトールコーヒーショップ千駄ヶ谷1丁目店…441m
・どらっぐぱぱす千駄ヶ谷店…154m
・マツモトキヨシ千駄ヶ谷店…532m
【お知らせ】
※水商売賃貸・ナイトワークのお部屋探し専門のお水の賃貸ではホ
空室であれば東京・神奈川・埼玉・千葉の物件全てご紹介可能です。
他社で断られた物件も、当社であれば相談できる場合もございます。
また、希望条件に合わせてのご紹介も可能ですのでお気軽にお問合せ下さい。
水商売の方のお部屋探しは『お水の賃貸』にお気軽にご相談ください。











