10月31日(金曜日)本日のおすすめ物件。
小型犬・猫はもちろん中型犬・大型犬・多頭飼いが相談が出来るペット共生マンション。
❝Dear WAN Court 練馬平和台(ディアワンコート練馬平和台)❞
2025年6月築の新築マンションですのでとても綺麗な物件です。
まだ誰も住んだことない物件で心機一転してみてはいかがでしょうか。
交通の便では東京メトロ有楽町線・副都心線「平和台駅」から徒歩2分の駅近です。
駅近ですので電車移動の際はスムーズです。
複数路線の利用が出来ますので便利です。
池袋駅まで乗り換えなしで行くことができ池袋エリアで勤務の方に特におすすめです。
物件周辺にはスーパーやコンビニ、ドラッグストアが徒歩圏内にありますので普段の買い物で困ることはないです。
こちらの物件の最大のポイントが大型犬・中型犬・多頭飼いが出来る点です。
通常のペット可物件の場合ですと小型犬・猫の1匹までが基本となります。
ペットの優しい物件となっていまして、こちらの特別仕様になっています。
・ドッグラン
屋上に、約26.0×約7.0mのドッグランを設置。
愛犬たちが自由に走り回ることができ、住人同士のコミュニケーションの場にもなります。
・ペット足洗い場
散歩の後などに便利なペット足洗い場を設置。
・冷凍クリーンボックス
屋内ペット足洗い場の横には、冷凍するゴミ箱「クリーンボックス」を設置。ペットの汚物などの臭いも気になりません。
・ナノイー発生機
1階エントランスホールに、天井埋め込み型ナノイー発生機を設置。ナノイーにはペットの臭いやアレルギー物質など、空気中のさまざまな有害物質を抑制する効果があるとされています。
・出入口のある専用テラス
1階には専用庭付のプランをご用意し、敷地外とダイレクトに出入りできる出入口を設けました。
・ペットカート置場
愛犬とのお出かけを積極的に楽しむ飼い主さんのために、住戸の玄関に愛犬のペットカート置き場スペースを用意しました。
・玄関リードフック
各住戸の玄関に、愛犬のリードフックを設置。
散歩に出かけるときなど、一時的にリードを掛けておけるので便利です。
・キズに強い壁クロス
室内壁の腰高より下の部分には、表面を強化し、汚れも防ぐ壁クロスを採用。愛犬が引っかいてもキズが付きにくいので安心です。
・滑りづらい床材
リビングには、滑りづらい床材を採用しました。
愛犬が気持ちよく走ることができて、ケガの予防にも役立ちます。
・床暖房
リビングダイニングに床暖房を装備しました。高温になったり温風を吹き出したりしないため、愛犬がヤケドをする心配がなく、抜け毛を舞い上げることもありません。
ここまでペットと一緒に生活出来る物件は少ないです。
共有部分には24時間利用のできる宅配ボックス、24時間ゴミ出しのできる敷地内ゴミ置き場を備えています。
セキュリティ面ではモニター付きオートロック、防犯カメラ、防犯性の高い鍵を採用しています。
あんしんして生活する事が出来ます。
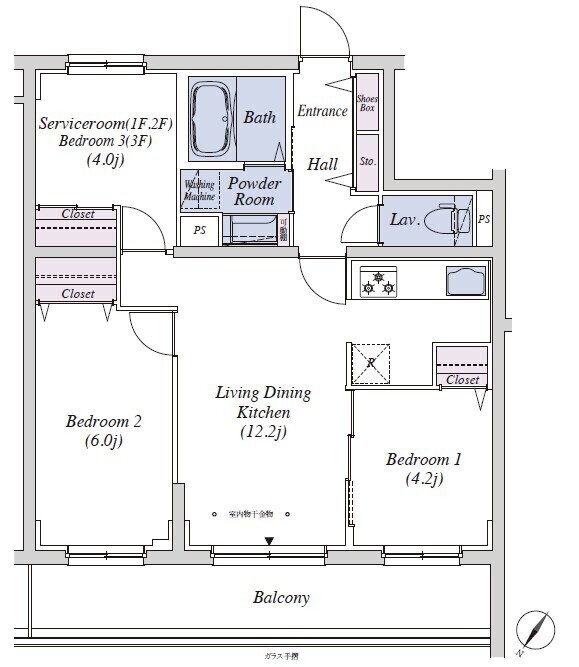
間取りはゆったりとした3LDKです。
二人入居やファミリーの方におすすめの間取りです。
室内設備も充実しており、床暖房、浴室乾燥機、独立洗面台、温水洗浄便座など快適な生活を支える設備機能が揃っています。
インターネットが無料で利用が可能です。
月々のランニングコストを抑えることが出来ますのでお財布にやさしいです。
ご不明点、ご質問などご気軽にお問合せください。
【外観】

【間取り】

【内観】

【キッチン】

【独立洗面台】

【バスルーム】

【トイレ】

【玄関】
【バルコニー】

【共有部分】

【募集図面】
【物件概要】
所在地:東京都練馬区早宮2丁目17-33
交通:東京メトロ有楽町線「平和台」駅 徒歩2分
交通:東京メトロ副都心線「平和台」駅 徒歩2分
交通:都営大江戸線「練馬春日町」駅 徒歩20分
入居時期:即入居
構造:鉄筋コンクリート造
規模:地上3階建て
間取り:3LDK
専有面積:58.77㎡
【賃貸条件】
賃料 :272,000~277,000円
管理費:20,000円
敷金:0ヶ月
礼金:0ヶ月
フリーレント:3ヶ月
契約期間:普通借家契約2年
更新料:新賃料の1ヶ月
【共用設備】
・モニター付オートロックシステム
・防犯カメラ
・メールボックス
・宅配ボックス
・敷地内ゴミ置き場
・自転車置き場
・バイク置き場
【室内設備】
・モニター付インターホン
・バストイレ別
・システムキッチン
・パウダールーム
・独立洗面台
・浴室乾燥暖房機
・追い焚き機能付きバス
・温水洗浄便座
・室内洗濯機置場
・冷蔵庫置場
・クローゼット
・シューズボックス
・フローリング
【備考】
・保証人不要
・初期費用分割可
・初期費用のクレジット決済可能
・ペット可
※中型犬・大型犬・多頭飼いの相談可能
・インターネット無料
【周辺施設】
・バーミヤン平和台駅前店…8m
・星乃珈琲店平和台店…116m
・マツモトキヨシ平和台駅前店…116m
・マイカリー食堂平和台店(松屋併設)…141m
・安楽亭平和台店185m
・松屋平和台店(マイカリー食堂併設)…116m
・まいばすけっと平和台駅前店…162m
・ローソン早宮二丁目店…109m
【お知らせ】
※水商売賃貸・ナイトワークのお部屋探し専門のお水の賃貸ではホ
空室であれば東京・神奈川・埼玉・千葉の物件全てご紹介可能です。
他社で断られた物件も、当社であれば相談できる場合もございます。
また、希望条件に合わせてのご紹介も可能ですのでお気軽にお問合せ下さい。
水商売の方のお部屋探しは『お水の賃貸』にお気軽にご相談ください。












