10月17日(金曜日)本日のおすすめ物件。
2025年10月築の高級分譲賃貸マンション。
ゆったり55㎡超えの1LDK。
❝PREMIUM CUBE 王子神谷(プレミアムキューブ王子神谷)❞
交通の便は東京メトロ南北線「王子神谷」駅から徒歩12分の場所に位置しています。
南北線の利用で乗り換えなしで「飯田橋」駅まで17分、「永田町」駅まで24分で行くことが出来ます。
乗り換え1回で「池袋」駅まで20分、「新宿」駅まで29分、「東京」駅まで30分で行くことが出来ます。
王子神谷駅は静かで治安の良い住宅が広がっているエリアです。
一人暮らしの女性の方も住みやすい街です。
物件の徒歩圏内にはスーパーやコンビニ、ドラッグストアなどありますので普段の買い物で困ることはないです。
セキュリティ面ではモニター付きオートロック、防犯カメラ、防犯性の高い鍵を採用しています。
防犯対策がしっかりしてますので安心して生活する事が出来ます。
共有部分には宅配ボックスを備えていますので24時間に荷物の受取が可能です。
忙しく自宅にあまりいない方には特にうれしい設備です。
敷地内ゴミ置き場は24時間ゴミ出しが出来ますので、曜日や時間を気にしなくていいです。
ペット飼育の相談が可能です。
犬·猫いずれか2匹(成長時体長50cm以下、10kg以下)まで相談が可能です。
2匹が飼育できる物件は少ないので多頭飼いしたい方におすすめの間取りです。
インターネットが無料で利用が可能です。
面倒なお手続き不要で引越しをした日から利用が出来ます。
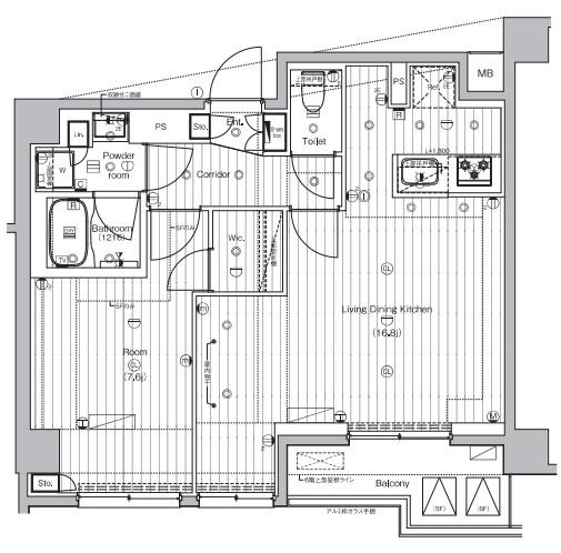
間取りはゆったりした55㎡の1LDKです。
1人でゆったり生活するのもありですし、2人入居の相談も可能ですので同棲を始める方にもおすすめの間取りです。
室内設備には生活を便利にする設備機能が充実していますので快適に生活する事が出来ます。
特に珍しいのがシャワーヘッドのReFa FINE BUBBLE Uを標準設置してある点です。
人気の美容シャワーヘッドで節水効果もあり、ウルトラファインバブルとマイクロバブルでしっかり汚れを落としてくれます。
浴室には浴室TVが付いています。
こちらの設備もとても珍しいです。
どちらの設備もお風呂が好きな方にもとても嬉しい設備です。
収納面ではウォークインクローゼットを備えています。
荷物が多い方も安心です。
その他にも人気の設備機能が充実していますので快適に生活する事が出来ます。
入居は2025年11月1日からを予定しております。
先行契約になりますがお申込の受付中です。
ご不明点、ご質問などご気軽にお問合せください。
【外観パース】

【間取り】

【エントランスパース】

【募集図面】

【物件概要】
所在地:東京都北区豊島6丁目15-以下未定
交通:東京メトロ南北線「王子神谷」駅 徒歩12分
交通:JR京浜東北線「王子」駅 徒歩24分
交通:JR京浜東北線「東十条」駅 徒歩25分
築年数:2025年10月築
入居時期:2025年11月1日
構造:鉄筋コンクリート造
規模:地上6階建て
総戸数:47戸
間取り:1LDK
専有面積:55.80㎡~55.84㎡
【賃貸条件】
賃料 :192,000円~200,000円
管理費:20,000円
敷金:0ヶ月
礼金:1ヶ月
契約期間:普通借家契約2年
更新料:新賃料の1.5ヶ月
【共用設備】
・モニター付オートロックシステム
・防犯カメラ
・メールボックス
・宅配ボックス
・敷地内ゴミ置き場
・駐輪場
・駐車場
【室内設備】
・モニター付インターホン
・バストイレ別
・システムキッチン
・パウダールーム
・独立洗面台
・浴室乾燥暖房機
・温水洗浄便座
・室内洗濯機置場
・冷蔵庫置場
・クローゼット
・シューズボックス
・フローリング
・エアコン
【備考】
・保証人不要
・初期費用分割可
・ペット可
・インターネット無料
・初期費用のクレジット決済可能
【周辺施設】
・まいばすけっと豊島7丁目店…436m
・ダイエー豊島団地店…603m
・業務スーパー王子店…645m
・セブンイレブン北区豊島6丁目店…174m
・ファミリーマート北区豊島七丁目店…219m
・サイゼリヤ足立新田店…674m
・ドトールコーヒーショップビバホーム豊島5丁目店…736m
・ココカラファインハートアイランド店…680m
・ビバホーム豊島5丁目店…736m
【お知らせ】
※水商売賃貸・ナイトワークのお部屋探し専門のお水の賃貸ではホ
空室であれば東京・神奈川・埼玉・千葉の物件全てご紹介可能です。
他社で断られた物件も、当社であれば相談できる場合もございます。
また、希望条件に合わせてのご紹介も可能ですのでお気軽にお問合せ下さい。
水商売の方のお部屋探しは『お水の賃貸』にお気軽にご相談ください。











