10月12日(日曜日)本日のおすすめ物件。
2025年9月築の分譲賃貸マンション。
人気のシリーズマンション。
❝SYFORME ITABASHIⅢ(シーフォルム板橋Ⅲ)❞
新築ですのでとても綺麗な物件です。
ピカピカの物件で新生活はいかがでしょうか。
交通の面では都営三田線「新板橋」駅から徒歩2分の駅近ですので電車移動の際はスムーズに移動が出来ます。
その他の交通ではJR埼京線「板橋」駅から徒歩6分で利用が出来ます。
埼京線の利用でビックターミナルの「池袋駅」「新宿駅」「渋谷駅」に乗り換えなしで電車一本で行くことが出来ます。
複数駅・複数路線の利用が出来ますので交通の便がとてもいいです。
物件周辺にはスーパーやコンビニが徒歩圏内にありますので普段の買い物で困ることはないです。
初期費用の面で敷金なし礼金なしですので初期安で引越しが可能です。
浮いたお金で今まで欲しかったものが買えちゃいます。
共有部分にはいつでも荷物の受取が可能な宅配ボックス、24時間ゴミ出しが可能な敷地内ゴミ置き場があります。
宅配ボックスと24時間ゴミ出しは人気の条件です。
時間や曜日などを気にしなくていいので気が楽です。
建物内の廊下は内廊下になっていますので外からのプライバシーが守られます。
セキュリティ面ではモニター付きオートロック、防犯カメラ、防犯性の高い鍵を採用していますので女性の一人暮らしも安心です。
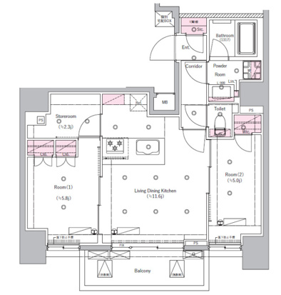
間取りはゆったりとした2LDKです。
これから2人入居をしたい方、ファミリーの方におすすめの間取りです。
キッチンはカウンターキッチンでとてもお洒落です。
室内設備には夕飯後の片付けが楽になる食器洗浄乾燥機が設備として備わっています。
その他にも人気の追い焚き機能付きバス、浴室乾燥機、独立洗面台などを備えています。
収納はウォークインクローゼットを備えていますので荷物が方も安心です。
設備機能が充実しているグレードの高いマンションです。
インターネットが無料で利用が出来ます。
面倒なお手続き不要で引越しをした日から利用ができ、月々のランニングコストを抑えることが出来ます。
大切なペットと一緒に生活が出来るペット可です。
小型犬または猫2匹まで飼育の相談が可能です。
これから飼育を検討している方におすすめです。
室内もゆったりしていますのでペットも快適に生活する事が出来ます。
別間取り(1DK、1LDK)もご紹介中です。
入居は11月上旬を予定しています。
まだ内見は出来ませんが先行申込の受付中です。
ご不明点、ご質問などご気軽にお問合せください。
【外観】

【間取り】

【内観】

【キッチン】

【独立洗面台】

【バスルーム】

【トイレ】

【洗濯機置き場】

【バルコニー】

【募集図面】

【物件概要】
所在地:東京都板橋区板橋1丁目47-10
交通:都営三田線「新板橋」駅 徒歩2分
交通:JR埼京線「板橋」駅 徒歩6分
交通:東武東上線「下板橋」駅 徒歩7分
築年数:2025年9月築
入居時期:2025年11月~
構造:鉄筋コンクリート造
規模:地上13階建て
間取り:2LDK
専有面積:55.94㎡~56.81㎡
【賃貸条件】
賃料 :277,500円~327,400円
管理費:15,000円
敷金:0ヶ月
礼金:0ヶ月
契約期間:普通借家契約2年
更新料:新賃料の1ヶ月
【共用設備】
・モニター付オートロックシステム
・メールボックス
・宅配ボックス
・敷地内ゴミ置き場
・駐輪場
・バイク置き場
・内廊下
【室内設備】
・モニター付インターホン
・バストイレ別
・システムキッチン
・食器洗浄乾燥機
・パウダールーム
・独立洗面台
・浴室乾燥暖房機
・追い焚き機能付きバス
・温水洗浄便座
・室内洗濯機置場
・冷蔵庫置場
・クローゼット
・シューズボックス
・フローリング
・エアコン
【備考】
・保証人不要
・初期費用分割可
・敷金なし礼金なし
・ペット可
・インターネット無料
・初期費用のクレジット決済可能
【周辺施設】
・ファミリーマート新板橋店…54m
・ライフ板橋店…181m
・セブンイレブン新板橋駅前店…205m
・珈琲館新板橋店…193m
・まいばすけっと新板橋駅南店…275m
・ローソン新板橋駅前店…205m
・焼肉酒家牛角板橋店…323m
・松屋板橋店…329m
【お知らせ】
※水商売賃貸・ナイトワークのお部屋探し専門のお水の賃貸ではホ
空室であれば東京・神奈川・埼玉・千葉の物件全てご紹介可能です。
他社で断られた物件も、当社であれば相談できる場合もございます。
また、希望条件に合わせてのご紹介も可能ですのでお気軽にお問合せ下さい。
水商売の方のお部屋探しは『お水の賃貸』にお気軽にご相談ください。











