9月29日(月曜日)本日のおすすめ物件。
JR常磐線・東京メトロ千代田線「綾瀬」駅から徒歩3分の場所に位置している賃貸マンション。
駅近物件ですので電車移動の際は駅までの移動が楽です。
複数路線の利用が可能ですので交通の便がとてもいいです。
綾瀬駅周辺には商業施設が充実しています。
イトーヨーカドー、M’av綾瀬リエッタ、業務スーパーがありますので普段の買い物で困ることはないです。
住環境が充実していますので快適に生活する事が出来ます。
初期費用の面では敷金なし礼金なしですのでお得に引越しが出来ます。
マンションのセキュリティ面ではモニター付きオートロック、防犯カメラ、防犯窓付きエレベーター、24時間セキュリティ、防犯性の高い鍵を採用しています。
防犯対策がしっかりしていますので女性の一人暮らしも安心です。
共有部分には宅配ボックスを備えています。
24時間いつでも荷物の受取が出来ますので忙しくて自宅にあまりいない方にとても助かります
対面での受け取りが不要ですので防犯対策にもなります。
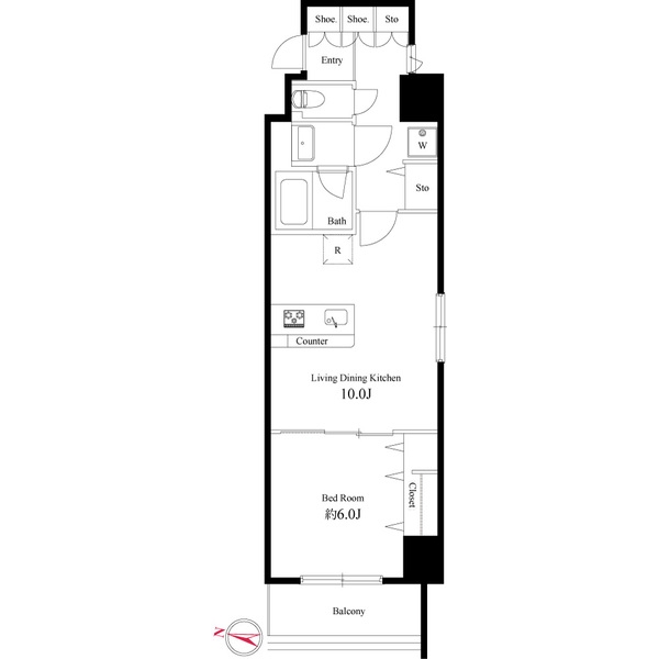
間取りは人気の1LDKです。
2人入居にもおすすめの間取りです。
キッチンは人気の条件のお洒落なカウンターキッチンです。
その他の設備には追い焚き機能付きバス、浴室乾燥機、独立洗面台、エアコンなど備えてますので快適です。
収納面では洋室に大きめのクローゼット、玄関にはたっぷり収納がありますので荷物の多い方も安心です。
インターネットが無料で利用が出来るのでポイントが高いです。
審査は楽々審査で承認率99%です。
審査は心配な方はご気軽にご相談下さい。
先行契約になりますのでお申込の受付中です。
ご不明点、ご質問などご気軽にお問合せください。
【外観】

【間取り図】

【内観】

【システムキッチン】

【独立洗面台】


【バスルーム】

【トイレ】

【室内設備】

【玄関】

【募集図面】

【物件概要】
所在地:東京都足立区綾瀬3丁目18-2
交通:東京メトロ千代田線「綾瀬」駅 徒歩3分
交通:JR常磐線「綾瀬」駅 徒歩3分
交通:つくばエクスプレス「青井」駅 徒歩14分
築年数:2015年8月築
入居時期:2025年11月6日
構造:鉄筋コンクリート造
規模:地上8階建て
総戸数:28
間取り:1LDK
専有面積:43.60㎡
【賃貸条件】
賃料 :157,000円
管理費:15,000円
敷金:0ヶ月
礼金:0ヶ月
契約期間:普通借家契約1年
更新料:新賃料の1ヶ月分
短期解約違約金:契約開始後1年未満解約の場合違約金1ヶ月(賃料+共益費)
※1、2回目の更新時5%の賃料改定あり、更新料は1回のみ。2回目以降の更新料はなし。
【共用設備】
・モニター付オートロックシステム
・防犯カメラ
・エレベーター
・メールボックス
・宅配ボックス
・敷地内ゴミ置き場
・駐輪場
【室内設備】
・モニター付インターホン
・バストイレ別
・2口システムキッチン
・パウダールーム
・独立洗面台
・浴室乾燥暖房機
・温水洗浄便座
・室内洗濯機置場
・冷蔵庫置場
・クローゼット
・シューズボックス
・フローリング
・エアコン
【備考】
・保証人不要
・敷金なし礼金なし
・初期費用分割可
・二人入居可
・インターネット無料
※1、2回目の更新時5%の賃料改定あり、更新料は1回のみ。2回目以降の更新料はなし。
【周辺施設】
・イトーヨーカドー綾瀬店…225m
・東急ストア綾瀬店…327m
・ベルクス足立綾瀬店…332m
・セブンイレブン足立綾瀬3丁目東店…161m
・ローソンストア100綾瀬3丁目店…164m
・ドトールコーヒーショップイトーヨーカドー綾瀬店…203m
・サイゼリヤ綾瀬駅前店…265m
・どらっぐぱぱす綾瀬店…193m
【お知らせ】
※水商売賃貸・ナイトワークのお部屋探し専門のお水の賃貸ではホ
空室であれば東京・神奈川・埼玉・千葉の物件全てご紹介可能です。
他社で断られた物件も、当社であれば相談できる場合もございます。
また、希望条件に合わせてのご紹介も可能ですのでお気軽にお問合せ下さい。
水商売の方のお部屋探しは『お水の賃貸』にお気軽にご相談ください。











