9月3日(水曜日)本日のおすすめ物件。
今人気の居室と寝室が分けて使える1DKタイプ。
初期費用も抑えられるキャンペーン物件。
こちらのブログを見た方限定で仲介手数料無料でご紹介させて頂きます。
初期費用はザックリでございますが約12~15万で初期費用が抑えられます。
細かい詳細が必要な方は、お気軽にスタッフまでご連絡ください。(必ずブログを見たとお伝えください。)
物件は、2025年3月築の綺麗な賃貸レジデンス。
ダイニングと寝室が分けて使える今人気の間取りです。
室内設備も充実しており、インターネットも無料でご利用が可能です。
保証会社はエポスと日本セフーティがご利用可能です。
内見に付きましても現地待ち合わせでの内見もご相談可能です。
お気軽にお問合せ下さい。
【外観】

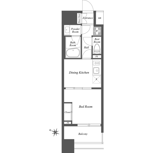
【間取り図】

【内観】
【クローゼット】

【システムキッチン】

【独立洗面台】

【バスルーム】

【温水洗浄便座】

【シューズボックス】

【玄関】

【エントランス】

【募集図面】

【物件概要】
所在地:東京都豊島区雑司が谷3丁目3ー4
交通:東京メトロ副都心線「雑司が谷」駅 徒歩2分
都営都電荒川線「鬼子母神前」駅 徒歩3分
JR山手線「目白」駅 徒歩9分
築年数:2025年3月
入居日:相談
構造:鉄筋コンクリート造
規模:地上14階建て
間取り:1DK
専有面積:25.25㎡
【賃貸条件】
賃料:153,000円
管理費:15,000円
敷金:0ヶ月
礼金:0ヶ月
契約期間:普通賃貸借2年
更新料:新賃料の1ヶ月分
【共用設備】
・モニター付オートロック
・防犯カメラ
・エレベーター
・メールボックス
・宅配ボックス
・敷地内ゴミ置場
・駐車場(月額38,500円※税込み、要空確認)
・ミニバイク置場(月額4,400円※税込み、要空確認)
・駐輪場(月額550円※税込み、要空確認)
【室内設備】
・モニター付インターホン
・バストイレ別
・2口ガスキッチン
・パウダールーム
・独立洗面台
・お湯張り機能
・浴室乾燥機
・トイレ洗浄機能付便座
・室内洗濯機置場
・冷蔵庫置場
・クローゼット
・シューズボックス
・フローリング
・ダブルロックキー
・エアコン
【備考】
・保証人不要
・初期費用分割可
・フリーレント1ヶ月(賃料のみ※フリーレント利用時、2年未満解約違約金あり)
・インターネット無料(UCOM光レジデンス)
・内装色(偶数階:ダーク 奇数階:ライト)
・ペット不可
・短期解約違約金あり(1年未満の解約の場合、賃料(共益費を除く)の1ヶ月分)
【周辺施設】
・雑司が谷郵便局…257m
・ローソン鬼子母神店…266m
・セブンイレブン豊島高田2丁目店…270m
・リコス雑司が谷2丁目店…316m
・キッチンオリジン目白高田店…357m
・ファミリーマート豊島南池袋三丁目店…427m
・マルエツプチ雑司が谷二丁目店…414m
・ローソンストア100南池袋三丁目店…366m
【お知らせ】
※水商売賃貸・ナイトワークのお部屋探し専門のお水の賃貸ではホ
空室であれば東京・神奈川・埼玉・千葉の物件全てご紹介可能です。
他社で断られた物件も、当社であれば相談できる場合もございます。
また、希望条件に合わせてのご紹介も可能ですのでお気軽にお問合せ下さい。
水商売の方のお部屋探しは『お水の賃貸』にお気軽にご相談ください。











