9月10日(水曜日)本日のおすすめ物件。
駅徒歩3分。憧れの代々木上原で暮らす!
カフェも、緑も、駅も、全部徒歩圏内、代々木上原の理想的な生活環境を独り占め。
洗練されたデザインの外観が目を惹き、都心にいながらも落ち着いた暮らしが実現できます。
初めての一人暮らしには、オススメのSTUDIOタイプ。
バストイレ別、独立洗面台、浴室乾燥機、インターネットは無料で使い放題のお得なマンションです。
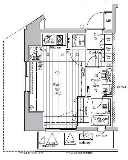
洋室は8.6帖でペット飼育2匹までご相談可能です。
入居は11月3日の少し先の物件で内見は出来ませんが、先行契約であればご相談可可能です。
お問合せお待ちしております。
【外観】

【間取り図】

【内観】

【システムキッチン】

【独立洗面台】

【バスルーム】

【温水洗浄便座】

【クローゼット】

【シューズボックス】

【玄関】

【TVモニター付インターホン】

【エントランス】

【募集図面】

【物件概要】
所在地:東京都渋谷区大山町1ー25
交通:東京メトロ千代田線「代々木上原」駅 徒歩3分
小田急小田原線「代々木上原」駅 徒歩3分
小田急小田原線「東北沢」駅 徒歩10分
築年数:2020年1月10日
入居日:2025年11月3日
構造:鉄筋コンクリート造
規模:地上8階建て
間取り:STUDIO
専有面積:23.27㎡
【賃貸条件】
賃料:139,000円
管理費:15,000円
敷金:0ヶ月
礼金:0ヶ月
契約期間:普通賃貸借2年
更新料:新賃料の1ヶ月分※更新2回目以降更新料なし(更新2回まで賃料5%増額規定)
【共用設備】
・モニター付オートロックシステム
・エレベーター
・防犯カメラ
・メールボックス
・宅配ボックス
・敷地内ゴミ置場
【室内設備】
・モニター付インターホン
・バストイレ別
・ガス2口システムキッチン
・パウダールーム
・独立洗面台
・24H換気浴室換・乾・暖
・温水洗浄付き暖房便座
・室内洗濯機置場
・冷蔵庫置場
・クローゼット
・シューズボックス
・人感センサー付玄関照明
・ディンプルキー
・フローリング
・エアコン
【備考】
・保証人不要
・初期費用分割可
・ペット飼育可:1匹の場合共益費+3500円追加、2匹の場合共益費+3500円追加及び敷金1ヶ月追加(償却)※犬・猫2匹まで可 (成長時体長50cm以下、体重10kg以下)
・Wi-Fiインターネット無料:シーファイブ
・短期解約違約金あり:1年未満の解約時、総賃料の2ヶ月分
【周辺施設】
・ビオセボン代々木上原店…305m
・OdakyuOX代々木上原店…343m
・アコルデ代々木上原…346m
・カルディコーヒーファーム代々木上原店…441m
・マルエツ代々木上原店…511m
・ファミリーマート上原三丁目店…183m
・ローソン渋谷大山町店…237m
・ファミリーマート代々木上原駅前店…321m
【お知らせ】
※水商売賃貸・ナイトワークのお部屋探し専門のお水の賃貸ではホ
空室であれば東京・神奈川・埼玉・千葉の物件全てご紹介可能です。
他社で断られた物件も、当社であれば相談できる場合もございます。
また、希望条件に合わせてのご紹介も可能ですのでお気軽にお問合せ下さい。
水商売の方のお部屋探しは『お水の賃貸』にお気軽にご相談ください。











